VOJ
Dom pri jazere
Dom pri jazere
Návrh víkendového domu pri jazere sa zameriava na hľadanie esencie rekreačného objektu, ako doplnku rodinného života. Dom bude slúžiť ako útočisko pre štvorčlennú päťčlennú rodinu žijúcu v meste—možnosť tráviť voľné chvíle v kruhu rodiny a priateľov v prírode.
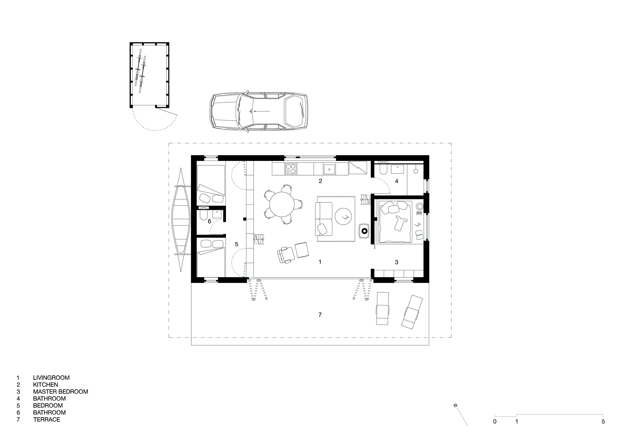
Jednopodlažnému bungalovu dominuje centrálny obývací priestor s krbovou pieckou. Sekundárne funkcie sú vytlačené do strán, svojím objemom ohraničujú spoločenskú miestnosť. Harmonikové zasklenie eliminuje rozhranie vnútri—vonku. Valbová strecha asymetricky, podľa potreby prekrýva jednotlivé strany "krabice". Smerom k jazeru—nad terasou sú to takmer tri metre cenného priestoru chráneného pred slnkom a dažďom.
Exteriér chaty je akoby bez detailu, monochromatický, biely—všetka pozornosť je venovaná tomu podstatnému, čo sa odohráva vo vnútri. Tam je teplo, farby, bohatosť.
Viac o projekte VOJ na blogu
Download Press Kit
Jednopodlažnému bungalovu dominuje centrálny obývací priestor s krbovou pieckou. Sekundárne funkcie sú vytlačené do strán, svojím objemom ohraničujú spoločenskú miestnosť. Harmonikové zasklenie eliminuje rozhranie vnútri—vonku. Valbová strecha asymetricky, podľa potreby prekrýva jednotlivé strany "krabice". Smerom k jazeru—nad terasou sú to takmer tri metre cenného priestoru chráneného pred slnkom a dažďom.
Exteriér chaty je akoby bez detailu, monochromatický, biely—všetka pozornosť je venovaná tomu podstatnému, čo sa odohráva vo vnútri. Tam je teplo, farby, bohatosť.
Viac o projekte VOJ na blogu
Download Press Kit
názov: VOJ—Dom pri jazere
realizácia: 2014—2016
veľkosť: 65 m2
miesto: Vojka nad Dunajom
architekt: P. Jurkovič
fotografie: P. Jurkovič
realizácia: 2014—2016
veľkosť: 65 m2
miesto: Vojka nad Dunajom
architekt: P. Jurkovič
fotografie: P. Jurkovič