TOV—Mikro byt
Mikro byt na Továrenskej ulici v Bratislave má byť zrekonštruovaný pre dočasné fungovanie jednotlivca alebo mladého páru v centre mesta.
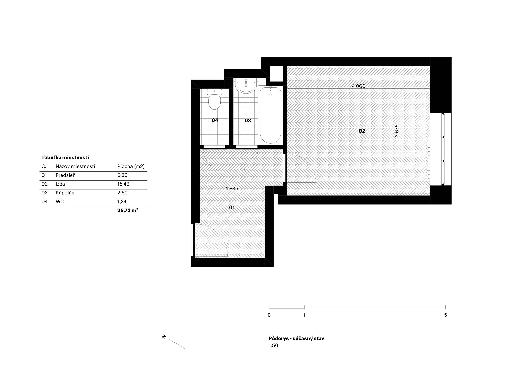
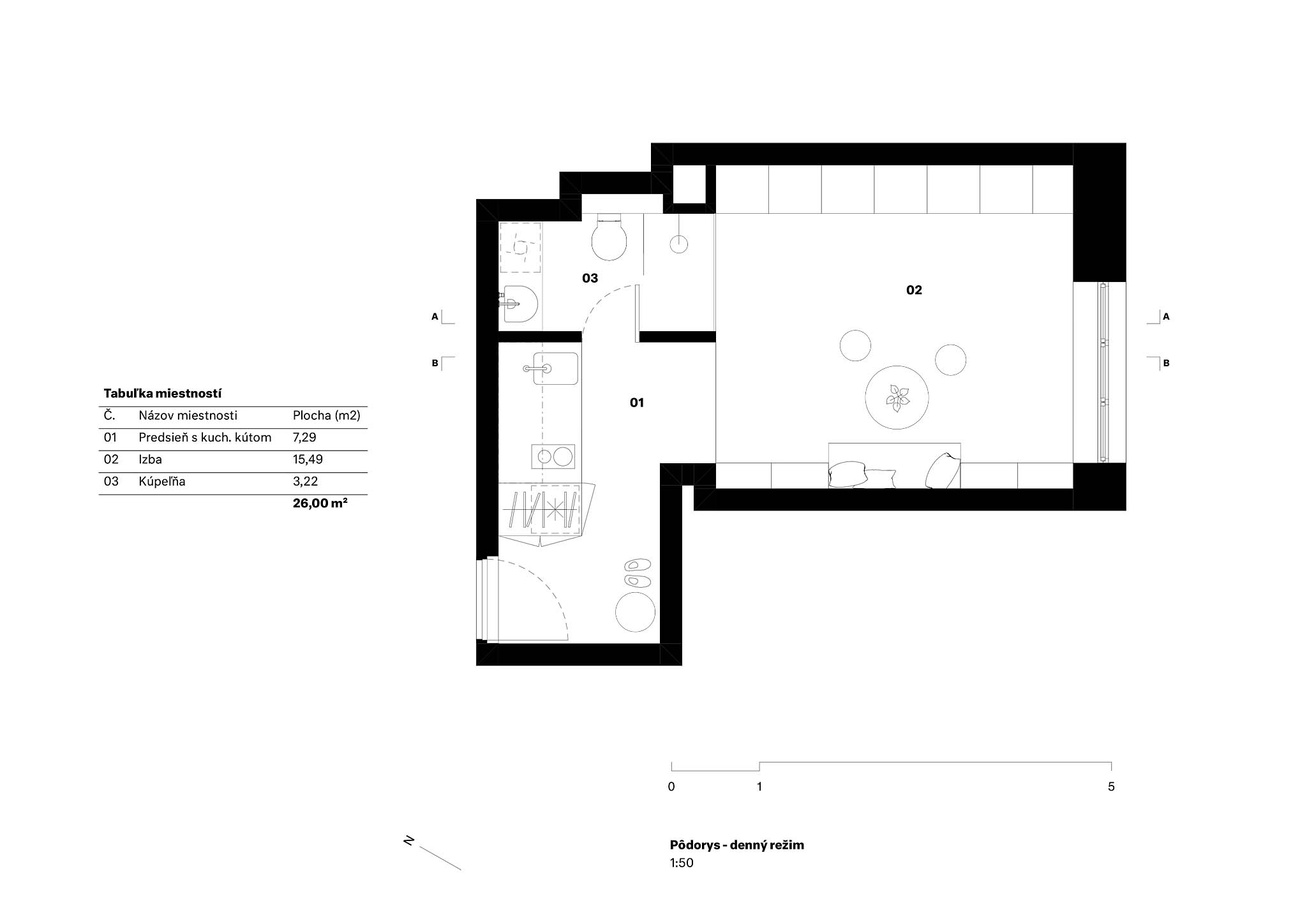
Dispozícia bytu je veľmi jednoduchá a viditeľne rozdeľuje priestor na dve časti. Časť servisnú, ktorá okrem vstupu obsahuje kúpeľnu a kuchynský kút. Časť pobytová doslova ukrýva všetko zariadenie potrebné pre komfortné bývanie v malom priestore.
Tieto dve časti sú vizuálne striktne oddelené. Priestor vstupu, kúpeľne a kuchynky je zjednotený monofarebným vizuálom. Priestor pobytu a relaxu je naopak materiálovo a farebne členený. Horizontálna linka vytvára vysoký drevený sokel, ktorý priestor rámuje. Vykrojené niky a nábytky využívajú jednoduchú geometriu a základnú farebnosť, čím je podčiarknutý charakter skladacích a sklápacích nábytkov. Priestor je vo svojej základnej forme voľná miestosť bez určenej náplne, po rozložení disponuje zariadením na akúkoľvek činnosť. Skladaním, rozkladaním a posúvaním pobytová miestnosť mení svoj charakter a využitie prisposobuje potrebám obyvateľa bytu.
Dispozícia bytu je veľmi jednoduchá a viditeľne rozdeľuje priestor na dve časti. Časť servisnú, ktorá okrem vstupu obsahuje kúpeľnu a kuchynský kút. Časť pobytová doslova ukrýva všetko zariadenie potrebné pre komfortné bývanie v malom priestore.
Tieto dve časti sú vizuálne striktne oddelené. Priestor vstupu, kúpeľne a kuchynky je zjednotený monofarebným vizuálom. Priestor pobytu a relaxu je naopak materiálovo a farebne členený. Horizontálna linka vytvára vysoký drevený sokel, ktorý priestor rámuje. Vykrojené niky a nábytky využívajú jednoduchú geometriu a základnú farebnosť, čím je podčiarknutý charakter skladacích a sklápacích nábytkov. Priestor je vo svojej základnej forme voľná miestosť bez určenej náplne, po rozložení disponuje zariadením na akúkoľvek činnosť. Skladaním, rozkladaním a posúvaním pobytová miestnosť mení svoj charakter a využitie prisposobuje potrebám obyvateľa bytu.
projekt: 2020
realizácia: —
veľkosť: 25 m2
miesto: Bratislava
architekt: Peter Jurkovič, Kristína Tomanová
fotografie: —
realizácia: —
veľkosť: 25 m2
miesto: Bratislava
architekt: Peter Jurkovič, Kristína Tomanová
fotografie: —