Sprievodná správa
Architektonická štúdia sa zameriava na rekonštrukciu fasády Esterházyho paláca, ktorý viackrát menil svoj vzhľad podľa zmien funkčného využitia. Dnes patrí Slovenskej národnej galérii a je súčasťou jej komplexu. Budova predstavuje vzácny príklad neorenesančného slohu v Bratislave. Návrh revitalizuje fasádu pri zachovaní pôvodného charakteru a otvára parter smerom k ulici, čím posilňuje spojenie s verejným priestorom. Cieľom je zachovať a obnoviť pôvodný vzhľad, očistiťfasádu a esteticky ju zjednotiť. Hlavná pozornosť sa venuje parteru, kde jemné zásahy zlepšujú prepojenie interiéru s exteriérom, čím sa zvyšuje interakcia budovy s verejnosťou a jej prepojenie s komplexom. Farebné zjednotenie a návrat k pôvodnému členeniu okien vytvára harmóniu s galériou, pričom digitálne prvky prinášajú modernú formu komunikácie a reflektujú aktuálnu úlohu objektu.
Esterházyho mestský palác, postavený v rokoch 1870—1873, dnes tvorí súčasť Slovenskej národnej galérie na Námestí Ľudovíta Štúra 4 v Bratislave. Nachádza sa na rohu Námestia Ľ. Štúra a Rázusovho nábrežia, pričom je súčasťou mestského bloku ohraničeného Mostovou ulicou, Hviezdoslavovým námestím a Riečnou ulicou. Budova stojí na mierne lichobežníkovej parcele a jej pôdorys má tvar písmena „O“ s centrálnym vnútorným nádvorím. Má dve hlavné fasády – jednu smerujúcu na Nám. Ľ. Štúra a druhú na Rázusovo nábrežie, s východným susedom, budovou Vodných kasární.
Budova bola postavená podľa návrh architekta Ignáca Feiglera ml., ktorého tvorba výrazne ovplyvnila podobu Bratislavy v 19. storočí. Hlavnú architektonickú hodnotu predstavuje neorenesančné stvárnenie fasád, pričom súčiastočne zachované aj pôvodné interiérové riešenia. Medzi cenné prvky patria konštrukčné riešenie s vnútorným nádvorím, valené klenby, kamenné nosné piliere, historické dverné výplne a zábradlia v interiéri, ako aj liatinová mreža na balkóne.
Esterházyho mestský palác, postavený v rokoch 1870—1873, dnes tvorí súčasť Slovenskej národnej galérie na Námestí Ľudovíta Štúra 4 v Bratislave. Nachádza sa na rohu Námestia Ľ. Štúra a Rázusovho nábrežia, pričom je súčasťou mestského bloku ohraničeného Mostovou ulicou, Hviezdoslavovým námestím a Riečnou ulicou. Budova stojí na mierne lichobežníkovej parcele a jej pôdorys má tvar písmena „O“ s centrálnym vnútorným nádvorím. Má dve hlavné fasády – jednu smerujúcu na Nám. Ľ. Štúra a druhú na Rázusovo nábrežie, s východným susedom, budovou Vodných kasární.
Budova bola postavená podľa návrh architekta Ignáca Feiglera ml., ktorého tvorba výrazne ovplyvnila podobu Bratislavy v 19. storočí. Hlavnú architektonickú hodnotu predstavuje neorenesančné stvárnenie fasád, pričom súčiastočne zachované aj pôvodné interiérové riešenia. Medzi cenné prvky patria konštrukčné riešenie s vnútorným nádvorím, valené klenby, kamenné nosné piliere, historické dverné výplne a zábradlia v interiéri, ako aj liatinová mreža na balkóne.
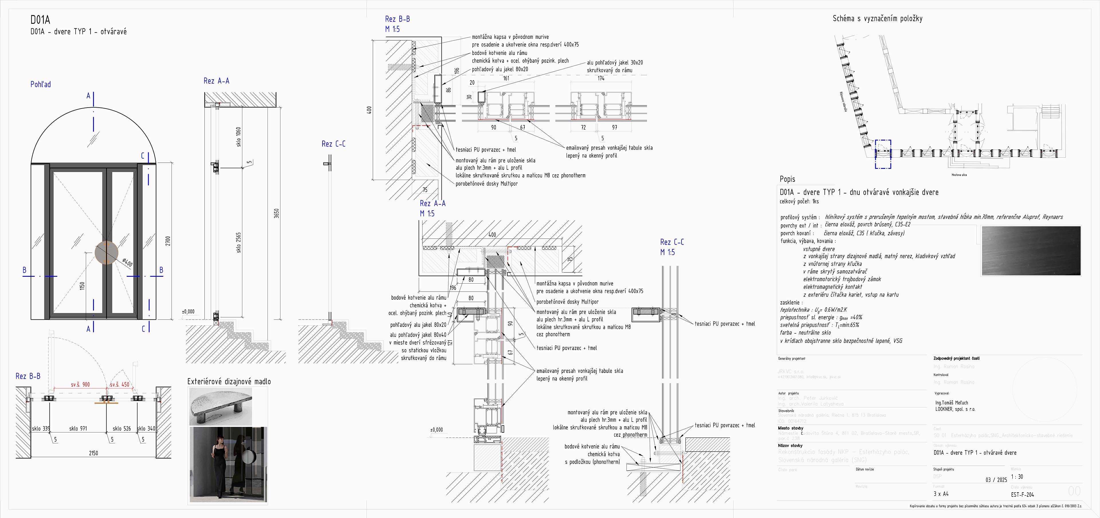
názov: SNG—Rekonštrukcia fasády NKP Esterházyho palác
projekt: 2025
realizácia: —
veľkosť:
miesto: Bratislava
architekt: Peter Jurkovič, Valeriia Latysheva
stavebná časť: Roman Rosina, Daniela Majáková, Lukáš Vasko
digitálne prvky: CTRL_Space
osvetlenie: Richard Baboľ
fotografie: —
projekt: 2025
realizácia: —
veľkosť:
miesto: Bratislava
architekt: Peter Jurkovič, Valeriia Latysheva
stavebná časť: Roman Rosina, Daniela Majáková, Lukáš Vasko
digitálne prvky: CTRL_Space
osvetlenie: Richard Baboľ
fotografie: —
Architektonický návrh
Návrh rekonštrukcie sa zameriava na zdôraznenie pôvodných architektonických hodnôt Esterházyho paláca a integráciu moderných prvkov, ktoré zlepšujú interakciu objektu s verejnosťou. Farebné riešenie fasády využíva jemnú monochromatickú paletu, ktorá zachováva jednotný charakter budovy, no zároveň vizuálne odlišuje jej jednotlivé časti.
Obnova fasády
Farebné riešenie fasády
Farebné riešenie fasády
Monochromatická farebná schémazvýrazňuje geometriu budovy a jemne podčiarkuje pôvodnédekoratívne prvky bez narušenia ich historického výrazu. Parterje farebne odlíšený tmavším odtieňom, čím sa vizuálne oddelí odhlavného telesa budovy.
Členenie fasády - Návrh prinavracia pôvodné delenie okien na 6 tabúľ na 2. až 4. nadzemnom podlaží. Všetky ornamenty a štýlové detaily sú zachované, čím sa posilňuje historický charakter paláca
Sokel - Bude obložený odolnejším materiálom, ako je kameň alebo terazzo, a doplnený o nové schodíky, čo zvyšuje jeho odolnosť a vizuálnu stabilitu.
Dekoratívne prvky - Ponechanie pôvodnej bosáže na prízemí a na rohoch budovy zachováva historickú integritu fasády. Farebné úpravy týchto detailov jemne zvýrazňujú ich tvar a textúru.
Členenie fasády - Návrh prinavracia pôvodné delenie okien na 6 tabúľ na 2. až 4. nadzemnom podlaží. Všetky ornamenty a štýlové detaily sú zachované, čím sa posilňuje historický charakter paláca
Sokel - Bude obložený odolnejším materiálom, ako je kameň alebo terazzo, a doplnený o nové schodíky, čo zvyšuje jeho odolnosť a vizuálnu stabilitu.
Dekoratívne prvky - Ponechanie pôvodnej bosáže na prízemí a na rohoch budovy zachováva historickú integritu fasády. Farebné úpravy týchto detailov jemne zvýrazňujú ich tvar a textúru.
Úpravy parteru
Zníženie parapetov a pivotové dvere
Zníženie parapetov a pivotové dvere
Okenné otvory v parteri budú nahradené pivotovými dverami so zníženými parapetmi a doplnené schodíkmi. Tieto úpravy umožnia lepšie prepojenie interiéru s exteriérom, zvýšia prístupnosť budovy a umožnia flexibilné otváranie dverí, čím sa posilní interaktivita s mestským priestorom. Súčasťou riešenia je aj nové schodisko s rampou a zabradlím, ktoré prilieha k novo navrhnutým vstupným portálom, vytvára bezbarierový prístup a zlepšuje celkovú estetiku vstupu, pričom nenarúša historický charakter objektu. Otvorenejší parter vytvára pocit pozvania, umožňuje návštevníkom nadviazať vizuálny kontakt s interiérom a budova sa stáva živou súčasťou mestského korza.
Digitálny prvok
Kordonová rímsa
Kordonová rímsa
Nahradenie výplne rímsy digitálnym LED panelom vytvára dynamický prvok, ktorý komunikuje s verejnosťou pomocou svetelných vzorov a informácií. LED panel prináša moderný vizuálny jazyk, čím obohacuje fasádu o novú dimenziu a vytvára kontrast medzi historickým vzhľadom a súčasným obsahom. Digitálny panel môže slúžiť na propagáciu výstav, čím sa eliminuje potreba tradičných reklamných bannerov, ktoré budú nahradené zredukovaným systémom.