Obecně vzato, domy s pečovatelskou umožňují seniorům naplnit běžný denní program, oproti každodennímu životu se však ve většině případů všechno odehrává na jednom místě. Náš projekt má koncepci „města ve městě“ s vlastními ulicemi (ochozy), náměstími (dvory), parky (zahradou), obytnými domy i společenskými prostory. Návrh tedy respektuje požadavky na různé potřeby soukromí, možnost volby mezi nejkratším spojením, či vycházkovou trasou a oddychem v rámci areálu. Podobně jako prostředí městské čtvrti, náš koncept počítá s rozmanitou skladbou privátních, poloveřejných, rozlehlých či komorních prostor. Nabízí buďto prostředí společné domácnosti – společné stolování, kutilské dílny atp. nebo naopak vysokou míru soukromí.
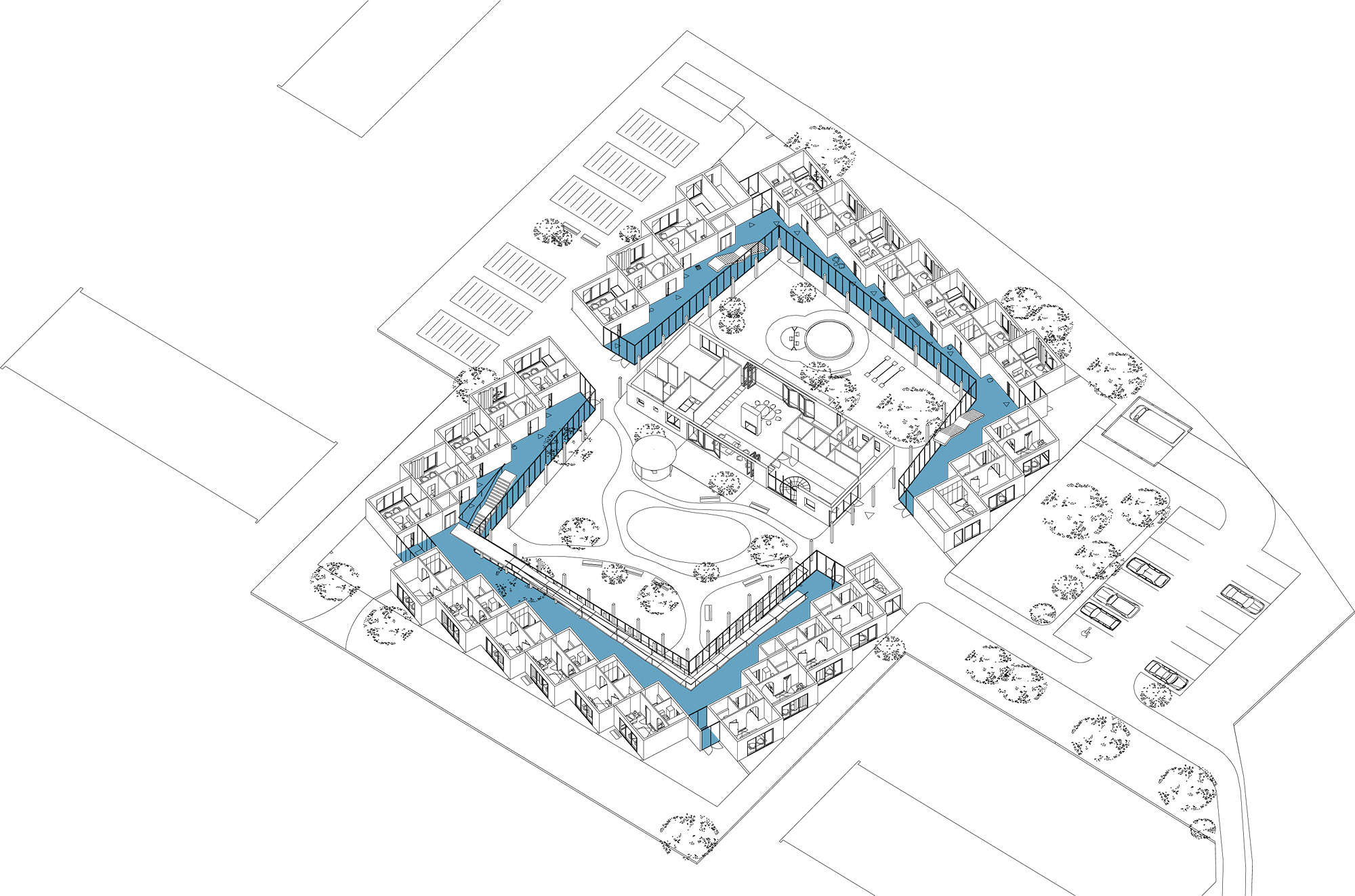
Krytá pavlač s výhledem do zeleně vnitrobloku představuje základní sociálně-komunikační prostor domu a vybízí ke klidné až meditativní chůzi okolo zahrady. Forma domu kopíruje hranici pozemku se snahou o maximalizaci délky obvodové plochy.
Krytá pavlač s výhledem do zeleně vnitrobloku představuje základní sociálně-komunikační prostor domu a vybízí ke klidné až meditativní chůzi okolo zahrady. Forma domu kopíruje hranici pozemku se snahou o maximalizaci délky obvodové plochy.
Pravidelně zalamovaná hmota obytné struktury byla komponována se záměrem efektivně využít denní světlo, primárně však k vytvoření intimních zón u vstupu do jednotlivých bytů ze strany vnitrobloku a privátních lodžií po vnějším obvodu stavby. Tyto vstupní niky poskytují příležitost k individualizaci, odlišení a tím pádem i usnadňují orientaci v celém areálu. Obyvatelé mají možnost dotvořit si vymezený osobní prostor přesahující interiér obytné buňky umístěním prvků mobiliáře, které jsou zvyklí užívat. Snadno uchopitelné dispozice bytů spolu s barevným řešením komunikačních tras a schodišť podporují orientaci a čitelnost prostoru. Modulární konstrukční systém tvořený dřevěnými panely a repetice bytových buněk umožňují snadné změny, rozšiřování, nebo dělení dispozičních jednotek.
Ačkoli usilujeme o ztvárnění architektury domu s pečovatelskou službou současnými výrazovými a konstrukčními prostředky, v našem návrhu se architektura nesnaží být hlavním protagonistou. Protagonisté jsou lidé a architektura je zařízení na spájení ambientního okolí s lidmi.
názov: SEZ—Dům s pečovatelskou službou
súťaž: 2014
umiestnenie: —
miesto: Sezimovo Ústí, Česká republika
architekt: D. Jurkovičová, P. Hudač, P. Jurkovič
text: P. Kolcunová
Ačkoli usilujeme o ztvárnění architektury domu s pečovatelskou službou současnými výrazovými a konstrukčními prostředky, v našem návrhu se architektura nesnaží být hlavním protagonistou. Protagonisté jsou lidé a architektura je zařízení na spájení ambientního okolí s lidmi.
názov: SEZ—Dům s pečovatelskou službou
súťaž: 2014
umiestnenie: —
miesto: Sezimovo Ústí, Česká republika
architekt: D. Jurkovičová, P. Hudač, P. Jurkovič
text: P. Kolcunová