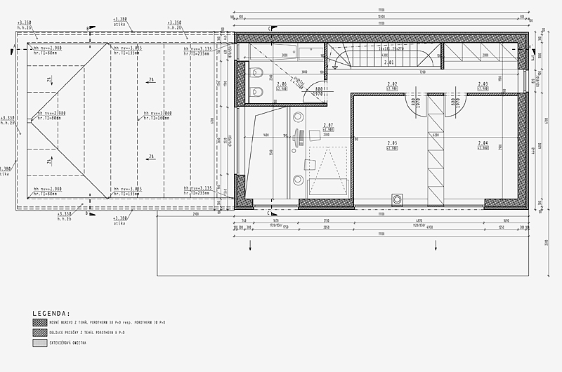
Jednoduchý rodinný dom pre štvorčlennú rodinu na minimálnom pozemku. “Low Budget” riešenie pre klienta s rozumnými požiadavkami na priestorovú hospodárnosť projektu. Projekt je staticky jednoduchý s možnosťou svojpomocnej realizácie.
názov: ROT—Rodinný dom
projekt: 2009
veľkosť: 150 m2
miesto: Bratislava
architekt: R. Halmi, P. Jurkovič, L. Kordík, Š. Polakovič
názov: ROT—Rodinný dom
projekt: 2009
veľkosť: 150 m2
miesto: Bratislava
architekt: R. Halmi, P. Jurkovič, L. Kordík, Š. Polakovič