

















NOVÁ DUNAJSKÁ
Bytový dom
Bytový dom
Riešené parcely sa nachádzajú v centre Bratislavy, na Dunajskej ulici. Zóna Dunajská má vzhľadom na svoju polohu tesné funkčné väzby na historické jadro—mestskú pamiatkovú rezerváciu—charakterizované vysokou polyfunkciou a mimoriadnou kultúrno-historickou hodnotou. Poloha zóny Dunajská na vnútornom mestskom okruhu dáva výhodu dobrej dopravnej dostupnosti smerom dovnútra i von zo zóny, a dobré na napojenie sa na trasy systému MHD.
V súčasnosti sa na pozemku 8760/1 nachádza trojpodlažný objekt so sedlovou strechou - nebytový objekt, obklopený štvor a päť-podlažnými bytovými a polyfunkčnými domami. Vo dvore na pozemku 8760/2 sa nachádza štvorpodlažný objekt so sedlovou strechou - bytový objekt. Objekty budú asanované a na pozemku nahradené novou hmotou, ktorá rešpektuje daný územný plán zóny. Blok 17/7 kde sa pozemok nachádza je podľa ÚPD definovaný nasledovne: “rozlohou malý, úzky blok s prevažujúcou funkciou bývania. Do Dunajskej ulice sú orientované obytné domy, architektonicky sú akcentované obidva nárožné objekty. Zástavba Ferienčíkovej je okrem domu č.8-10 menej významná s nízkou hladinou zástavby i nízkym stavebno-technickým stavom domov. Dvorové priestory sú veľmi malé—až stiesnené, minimálne zazelenené.“
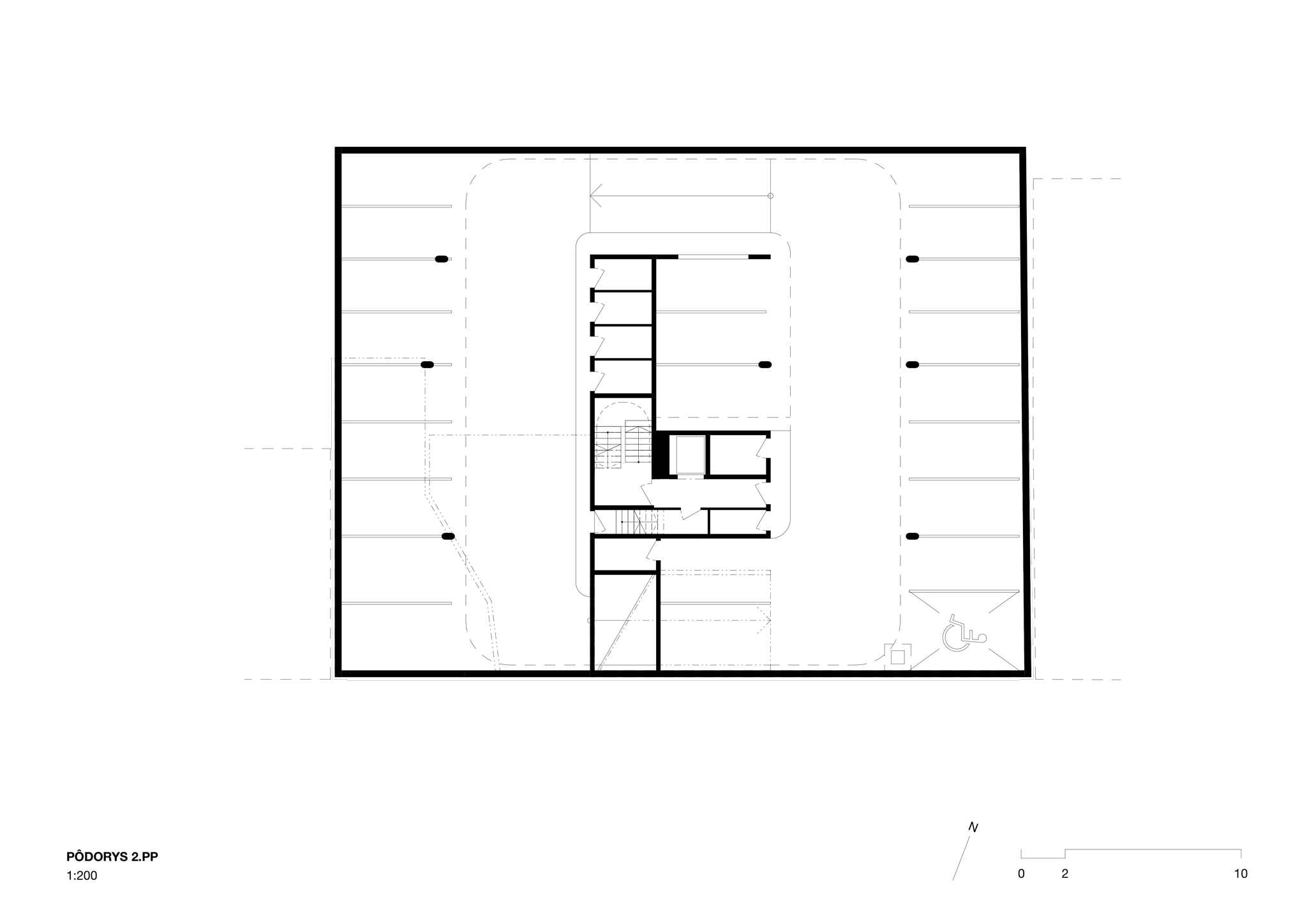
Objekt je obslúžený jedným vertikálnym komunikačným jadrom, ktoré prechádza celým domom. Osadené je približne v strede dispozície, aby bolo možné okolo situovať jednotlivé funkcie, najmä byty s ideálnym využitím oboch fasád. Orientácia objektu je severná fasáda v dvorovej časti a južná fasáda v uličnej časti (Dunajská). V parteri nástup k jadru rozdeľuje dispozíciu na dva priestory určené občianskej vybavenosti s výkladom do ulice. Zo vstupnej haly je možné vystúpať do záhrady, ktorá sa nachádza nad garážami a je na úrovni 2. nadzemného podlažia. Toto prvé podlažie určené na bývanie tvoria spoločné priestory (komunikácia) a 4 byty v zložení 1 x 2 izbový byt orientovaný do dvora, 1 x 3 izbový byt orientovaný do ulice a dva priečne prevetrávané byty na kraji dispozície. Z toho jeden byt 3 izbový a jeden 4 izbový. Práve tieto väčšie byty majú priamy kontakt so záhradou do ktorej majú orientovanú časť dennej a aj nočnú časť. V záhrade je aj časť, ktorá slúži pre všetkých obyvateľov domu. Na treťom a štvrtom nadzemnom podlaží sa nachádza rovnaká schéma bytov a to 2 x 2 izbové byty do ulice, 2 x 4 izbové byty priečne a 1 x 1 izbový byt do dvora. Na piatom nadzemnom podlaží sa nachádza skladba bytov v zložení 1 x 1 izbový byt do dvora, 1 x 3 izbový byt do ulice a 2 x 4 izbový byt na kraji dispozície priečne prevetrané.
Trojizbové byty orientované do ulice majú navrhnutú loggiu, ktorá je prístupná aj z dennej časti byty aj zo spálne. Hygienická časť je navrhnutá v hĺbke dispozície v strednej časti domu. Krajné priečne prevetrávané byty majú rovnaký koncept v podobe preplávajúcej dennej časti, ktorá prechádza od južnej po severnú fasádu. Jednotlivé funkcie dennej časti (kuchyňa a obývacia izba) sú navzájom preplávajúce. Toto riešenie vytvára zaujímavé priehľady v rámci bytu do jednotlivých rozdielnych svetov—na jednej strane ulica a na druhej strane vnútroblok. Južná uličná strana obývacích izieb je chránená po celej dĺžke vonkajšími žalúziami a tvoria filter pred priamym kontaktom bytu s mestom. Severná časť priestoru ponúka svoje ideálne využitie ako kuchyňa s jedálňou orientované do kľudnej dvorovej časti s priamym prepojením s exteriérom formou vysunutých balkónov. Nočná časť bytov - detské izby je takisto orientovaná do dvora, dispozícia väčších bytov ponúka pri rodičovskej spálni komfort vlastnej kúpeľne.
Na 6. ustúpenom nadzemnom podlaží sú navrhnuté dva 3 izbové byty. Byty majú členitý pôdorysný tvar, čo umožňuje terasám a exteriéru zabiehať do dispozície a vytvárať tak intímnu zónu na strešnej rovine. Z komunikačného jadra sa vstupuje do zádveria a následne do centrálnej dennej časti, z ktorej sú prístupné všetky ostatné funkcie bytu. Denná časť má vyššiu svetlú výšku s veľkým presklením na severnej fasáde. Nočná časť pozostáva zo spálne s vlastnou hygienou priamo prístupnou vrámci jedného priestoru. Je to priestor ateliérového typu s vyššou svetlou výškou.
Architektonické stvárnenie fasády odpovedá funkcii a polohe objektu v rámci mesta. Parter je navrhnutý z materiálovo trvácnych betónových prefabrikovaných platní s rôznou štruktúrou. Hlavná fasáda domu je navrhnutá z minerálnej škrabanej omietky v okrovo šedej tonalite, ktorá je vhodná na podmienky v centre mesta. Ustúpené podlažie obložené reliéfnymi panelmi z extrudovaného skla so svetlo ružovými náterom.
V súčasnosti sa na pozemku 8760/1 nachádza trojpodlažný objekt so sedlovou strechou - nebytový objekt, obklopený štvor a päť-podlažnými bytovými a polyfunkčnými domami. Vo dvore na pozemku 8760/2 sa nachádza štvorpodlažný objekt so sedlovou strechou - bytový objekt. Objekty budú asanované a na pozemku nahradené novou hmotou, ktorá rešpektuje daný územný plán zóny. Blok 17/7 kde sa pozemok nachádza je podľa ÚPD definovaný nasledovne: “rozlohou malý, úzky blok s prevažujúcou funkciou bývania. Do Dunajskej ulice sú orientované obytné domy, architektonicky sú akcentované obidva nárožné objekty. Zástavba Ferienčíkovej je okrem domu č.8-10 menej významná s nízkou hladinou zástavby i nízkym stavebno-technickým stavom domov. Dvorové priestory sú veľmi malé—až stiesnené, minimálne zazelenené.“
Objekt je obslúžený jedným vertikálnym komunikačným jadrom, ktoré prechádza celým domom. Osadené je približne v strede dispozície, aby bolo možné okolo situovať jednotlivé funkcie, najmä byty s ideálnym využitím oboch fasád. Orientácia objektu je severná fasáda v dvorovej časti a južná fasáda v uličnej časti (Dunajská). V parteri nástup k jadru rozdeľuje dispozíciu na dva priestory určené občianskej vybavenosti s výkladom do ulice. Zo vstupnej haly je možné vystúpať do záhrady, ktorá sa nachádza nad garážami a je na úrovni 2. nadzemného podlažia. Toto prvé podlažie určené na bývanie tvoria spoločné priestory (komunikácia) a 4 byty v zložení 1 x 2 izbový byt orientovaný do dvora, 1 x 3 izbový byt orientovaný do ulice a dva priečne prevetrávané byty na kraji dispozície. Z toho jeden byt 3 izbový a jeden 4 izbový. Práve tieto väčšie byty majú priamy kontakt so záhradou do ktorej majú orientovanú časť dennej a aj nočnú časť. V záhrade je aj časť, ktorá slúži pre všetkých obyvateľov domu. Na treťom a štvrtom nadzemnom podlaží sa nachádza rovnaká schéma bytov a to 2 x 2 izbové byty do ulice, 2 x 4 izbové byty priečne a 1 x 1 izbový byt do dvora. Na piatom nadzemnom podlaží sa nachádza skladba bytov v zložení 1 x 1 izbový byt do dvora, 1 x 3 izbový byt do ulice a 2 x 4 izbový byt na kraji dispozície priečne prevetrané.
Trojizbové byty orientované do ulice majú navrhnutú loggiu, ktorá je prístupná aj z dennej časti byty aj zo spálne. Hygienická časť je navrhnutá v hĺbke dispozície v strednej časti domu. Krajné priečne prevetrávané byty majú rovnaký koncept v podobe preplávajúcej dennej časti, ktorá prechádza od južnej po severnú fasádu. Jednotlivé funkcie dennej časti (kuchyňa a obývacia izba) sú navzájom preplávajúce. Toto riešenie vytvára zaujímavé priehľady v rámci bytu do jednotlivých rozdielnych svetov—na jednej strane ulica a na druhej strane vnútroblok. Južná uličná strana obývacích izieb je chránená po celej dĺžke vonkajšími žalúziami a tvoria filter pred priamym kontaktom bytu s mestom. Severná časť priestoru ponúka svoje ideálne využitie ako kuchyňa s jedálňou orientované do kľudnej dvorovej časti s priamym prepojením s exteriérom formou vysunutých balkónov. Nočná časť bytov - detské izby je takisto orientovaná do dvora, dispozícia väčších bytov ponúka pri rodičovskej spálni komfort vlastnej kúpeľne.
Na 6. ustúpenom nadzemnom podlaží sú navrhnuté dva 3 izbové byty. Byty majú členitý pôdorysný tvar, čo umožňuje terasám a exteriéru zabiehať do dispozície a vytvárať tak intímnu zónu na strešnej rovine. Z komunikačného jadra sa vstupuje do zádveria a následne do centrálnej dennej časti, z ktorej sú prístupné všetky ostatné funkcie bytu. Denná časť má vyššiu svetlú výšku s veľkým presklením na severnej fasáde. Nočná časť pozostáva zo spálne s vlastnou hygienou priamo prístupnou vrámci jedného priestoru. Je to priestor ateliérového typu s vyššou svetlou výškou.
Architektonické stvárnenie fasády odpovedá funkcii a polohe objektu v rámci mesta. Parter je navrhnutý z materiálovo trvácnych betónových prefabrikovaných platní s rôznou štruktúrou. Hlavná fasáda domu je navrhnutá z minerálnej škrabanej omietky v okrovo šedej tonalite, ktorá je vhodná na podmienky v centre mesta. Ustúpené podlažie obložené reliéfnymi panelmi z extrudovaného skla so svetlo ružovými náterom.


















