Pozemok na východnom svahu. Z južnej strany je zatienený susedným domom. Polohu navrhovaného objektu sme určili paradoxne práve v zatienenej časti záhrady z viacerých dôvodov. Po dlhšej osi pozemku bolo potrebné eliminovať dĺžku prístupovej komunikácie k domu. Bežný dvojpodlažný dom s delenou dennou a nočnou časťou a dlhšou južnou fasádou by mal dosť slnečného žiarenia, ale pobytová záhrada by trpela susedným objektom.
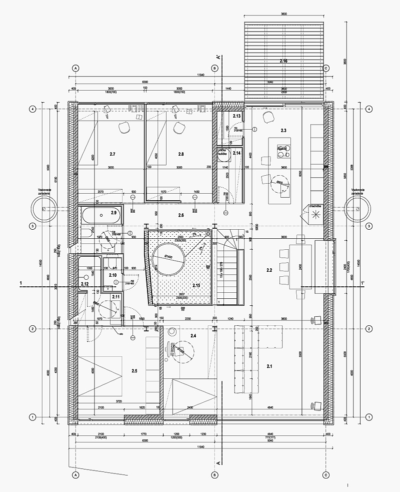
Namiesto na prvý pohľad logického vertikálneho riešenia sa nám ponúka spojenie dennej a nočnej časti do štvorcového pôdorysu. Ten zaberie takmer celú šírku záhrady. Plášť ignoruje južnú a severnú stranu. Interiér sa otvára na východ k výhľadom do údolia Novosvetskej ulice a na západ do súkromia záhrady. Denná časť dispozície je prisvetlovaná vloženým pátiom.
Rodinný dom kopíruje svah v troch podlažiach, 1pp garáž a technické priestorty, 2pp hobby miestnosť, resp. byt pre návštevy a 2np ako štvorizbový byt na teréne. Dispozícia dennej časti je zokruhovaná okolo pátia. Prepojením jednotlivých zón do kruhu reflektujeme rastúci trend segregácie jednotlivých členov rodiny a snažíme sa podporiť dobrý pocit zo zdielania jedného priestoru členmi celej rodiny.
názov: NOV—Rodinný dom
realizácia: 2011
veľkosť: 220 m2
miesto: Bratislava
architekt: P. Jurkovič, L. Kordík, Š. Polakovič
Namiesto na prvý pohľad logického vertikálneho riešenia sa nám ponúka spojenie dennej a nočnej časti do štvorcového pôdorysu. Ten zaberie takmer celú šírku záhrady. Plášť ignoruje južnú a severnú stranu. Interiér sa otvára na východ k výhľadom do údolia Novosvetskej ulice a na západ do súkromia záhrady. Denná časť dispozície je prisvetlovaná vloženým pátiom.
Rodinný dom kopíruje svah v troch podlažiach, 1pp garáž a technické priestorty, 2pp hobby miestnosť, resp. byt pre návštevy a 2np ako štvorizbový byt na teréne. Dispozícia dennej časti je zokruhovaná okolo pátia. Prepojením jednotlivých zón do kruhu reflektujeme rastúci trend segregácie jednotlivých členov rodiny a snažíme sa podporiť dobrý pocit zo zdielania jedného priestoru členmi celej rodiny.
názov: NOV—Rodinný dom
realizácia: 2011
veľkosť: 220 m2
miesto: Bratislava
architekt: P. Jurkovič, L. Kordík, Š. Polakovič