
PÔVODNÝ STAV
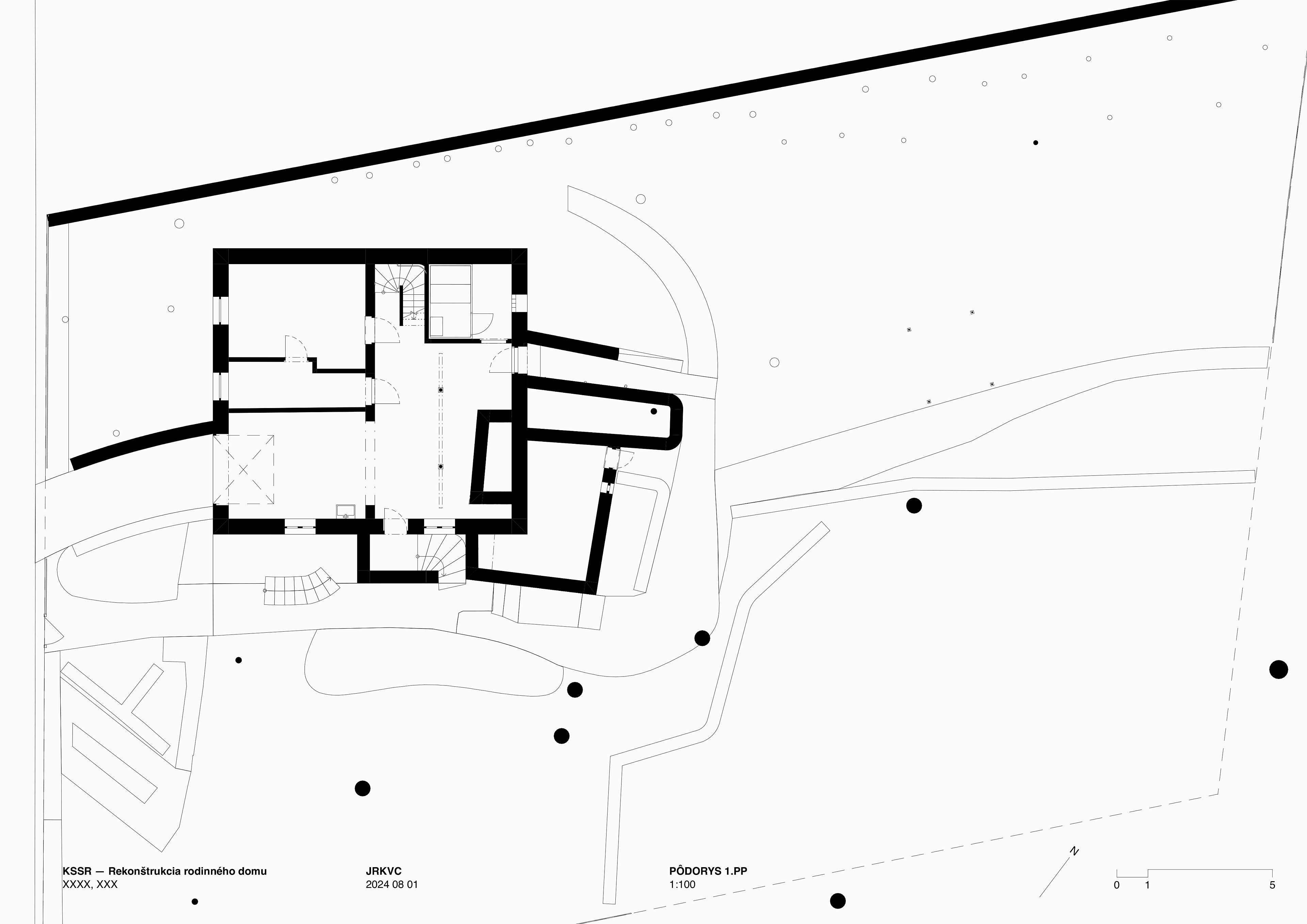
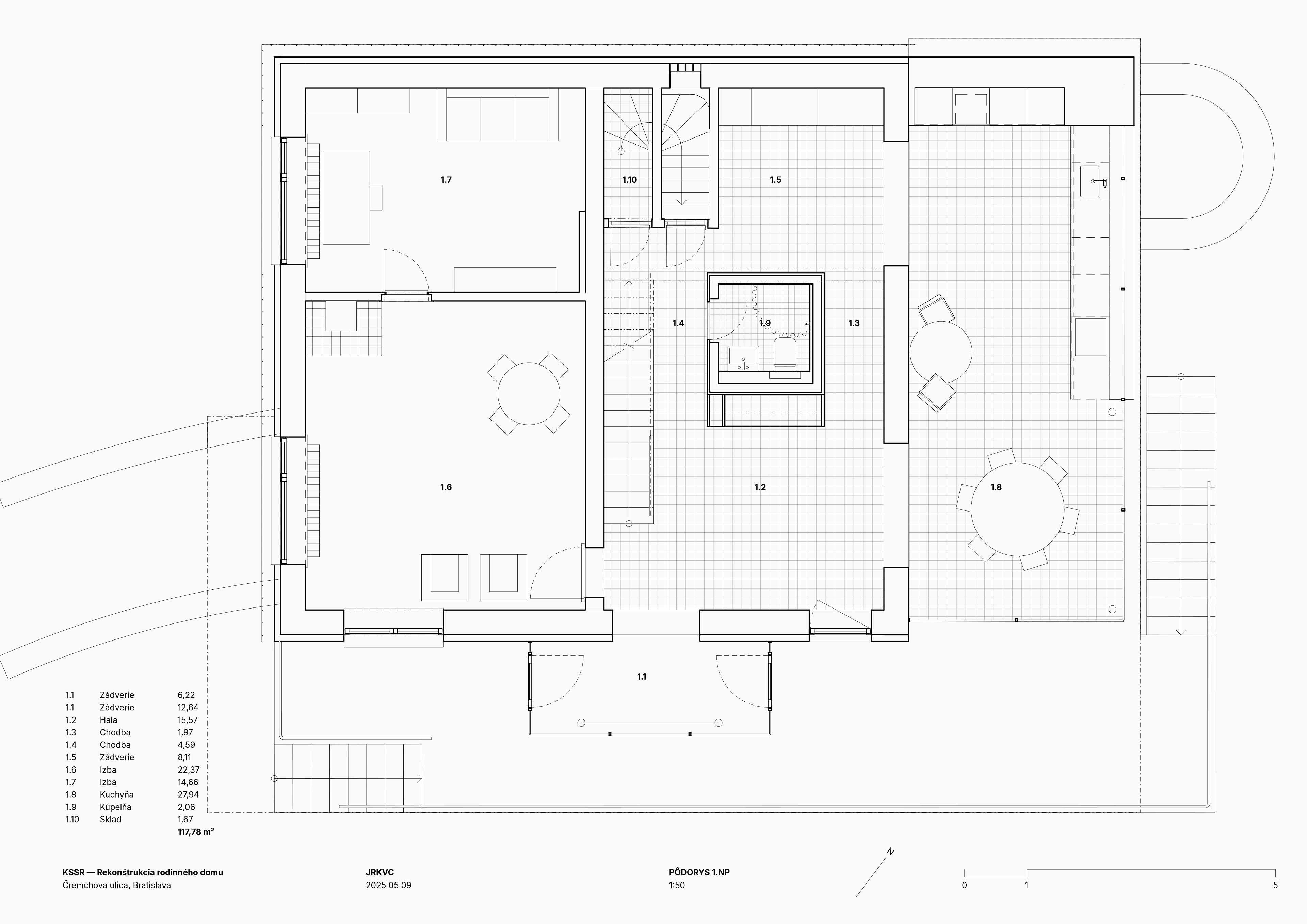
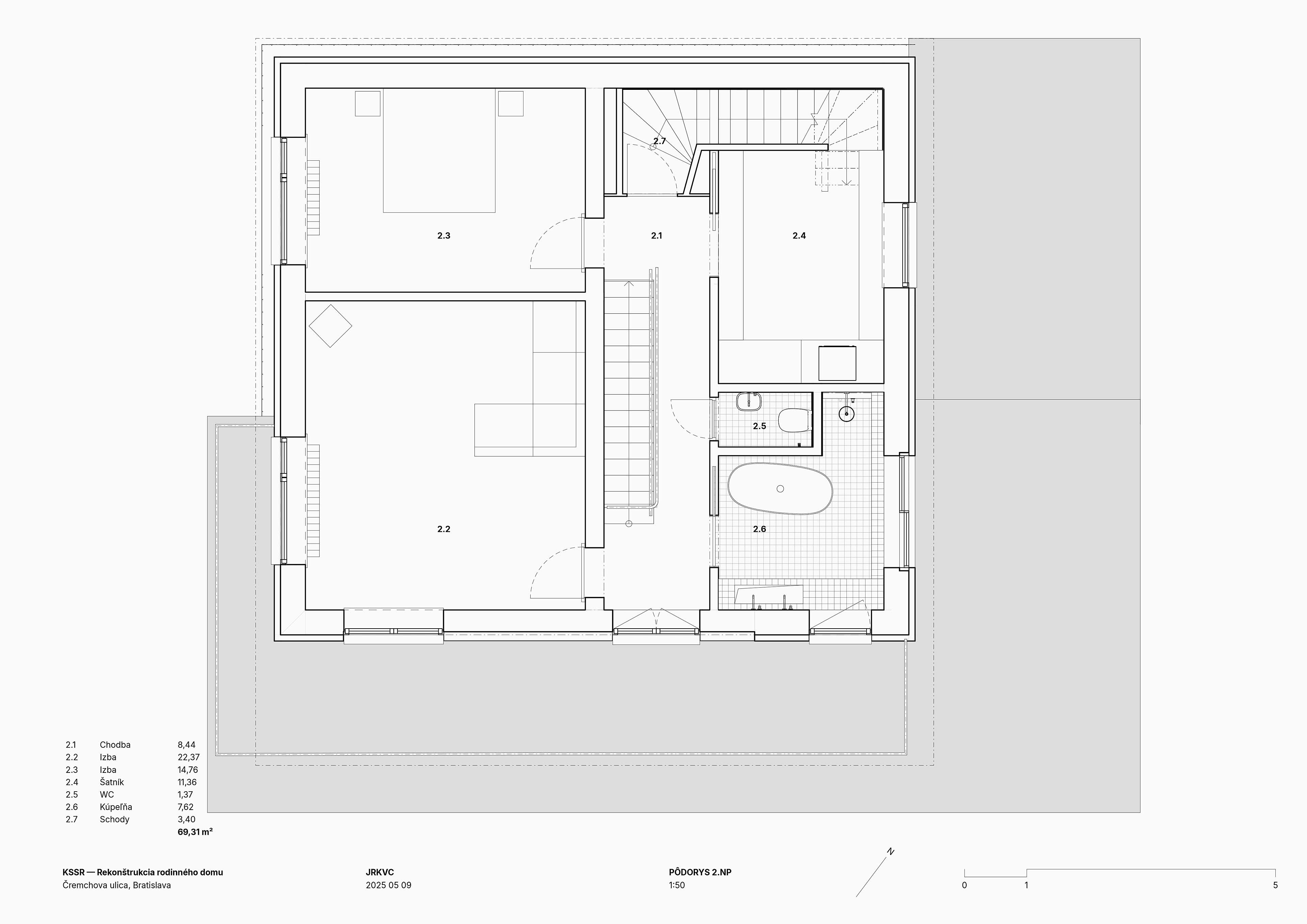
Murovaný rodinný dom s jedným podzemným podlažím a dvomanadzemnými podlažiami. Je umiestnený vo svahovitom pozemku.Prvé nadzemné podlažie, ktoré slúži ako denná časť domu je nadúrovňou terénu o polovicu výšky podlažia. Je prístupnéjednoramenným schodiskom. Na druhom nadzemnom podlaží sanachádzajú dve izby a hygienické vybavenie. Strecha je pultová,nepochôdzna. K východnej fasáde domu je pristavaná dvojpodlažnáprístavba so zimnou záhradou a pivnicou prístupnou z exteriéru.
Murovaný rodinný dom s jedným podzemným podlažím a dvomanadzemnými podlažiami. Je umiestnený vo svahovitom pozemku.Prvé nadzemné podlažie, ktoré slúži ako denná časť domu je nadúrovňou terénu o polovicu výšky podlažia. Je prístupnéjednoramenným schodiskom. Na druhom nadzemnom podlaží sanachádzajú dve izby a hygienické vybavenie. Strecha je pultová,nepochôdzna. K východnej fasáde domu je pristavaná dvojpodlažnáprístavba so zimnou záhradou a pivnicou prístupnou z exteriéru.
1
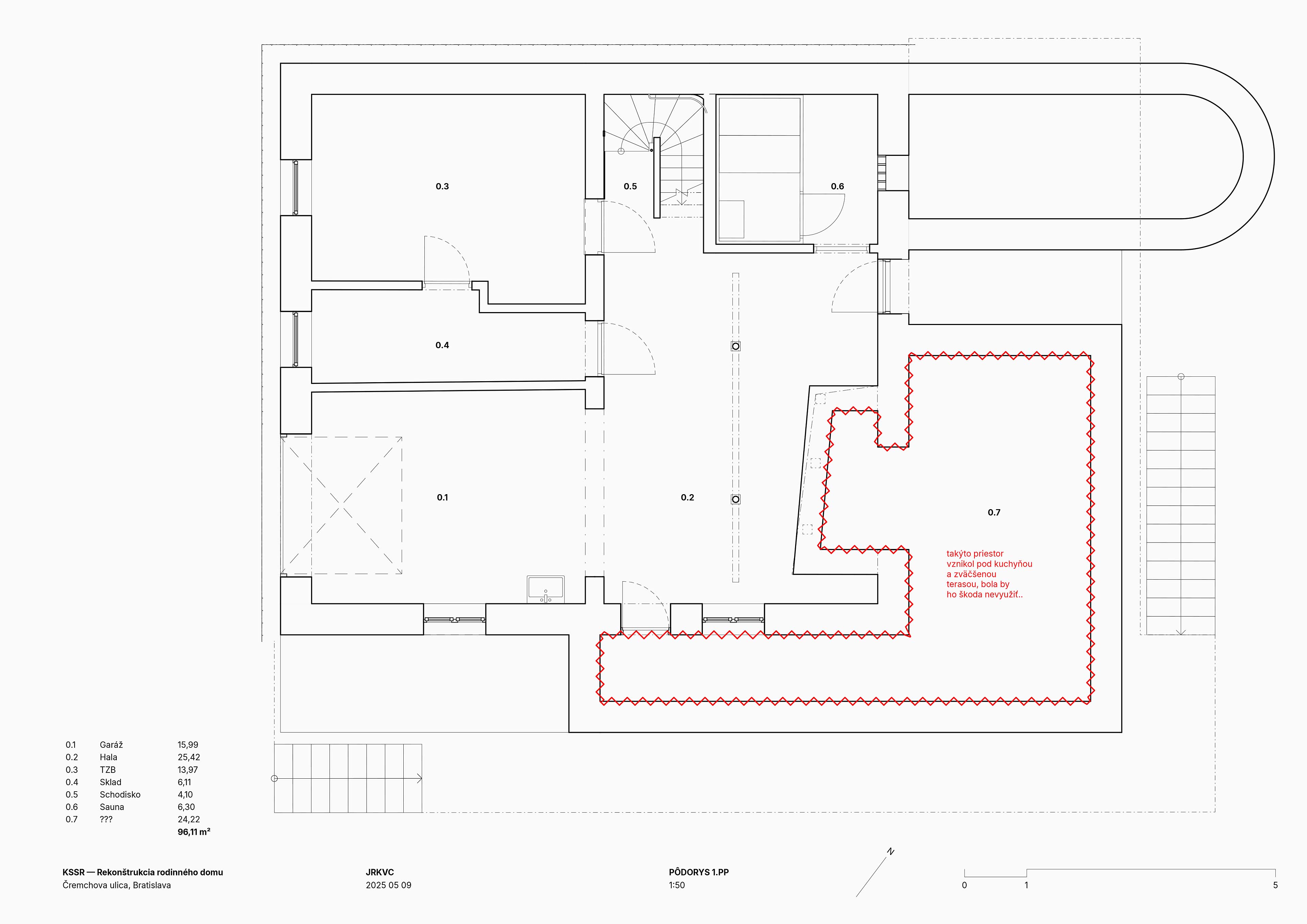
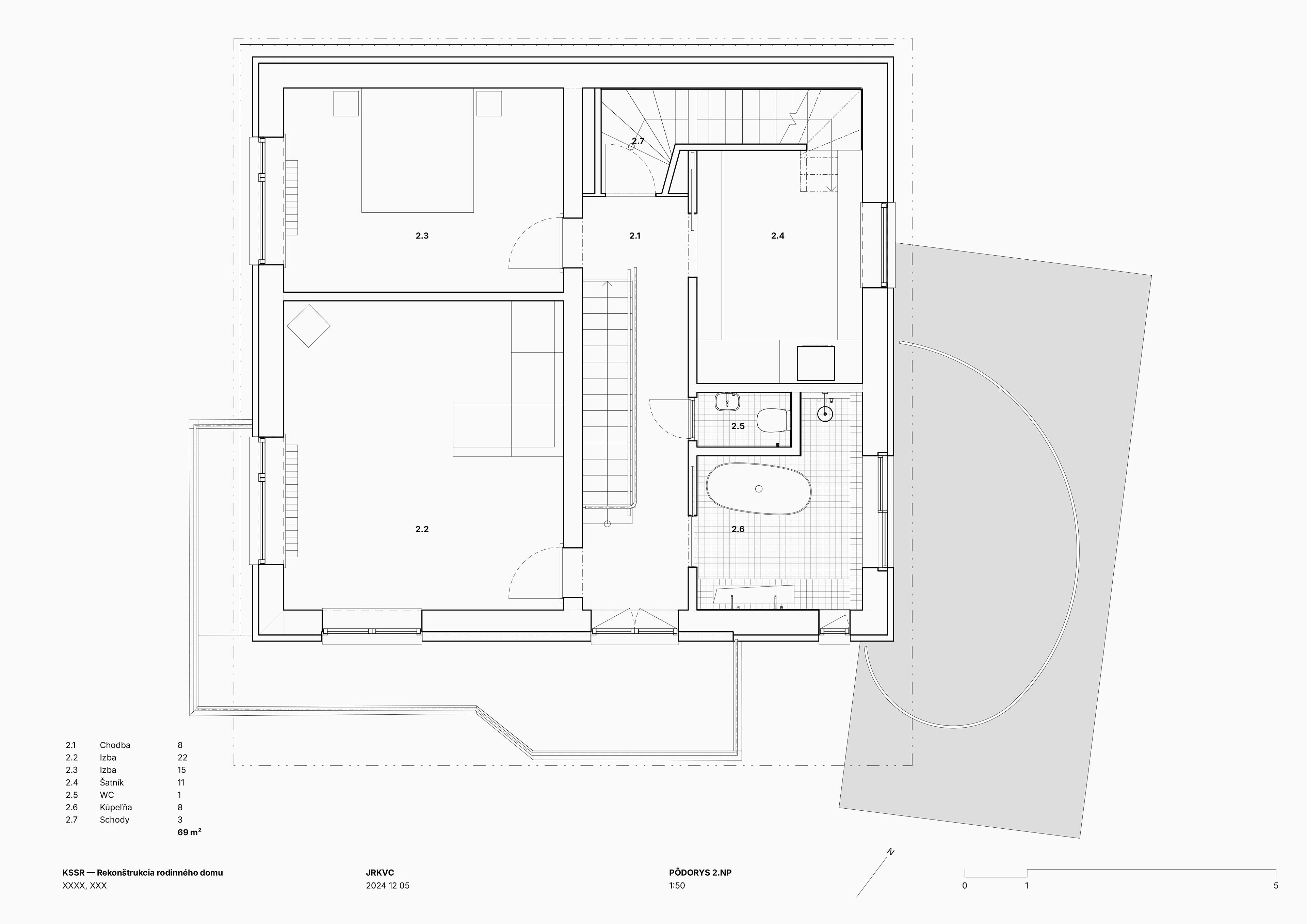
Prvá verzia rekonštrukcie domu rieši podstatné prevádzkovénedostatky objektu. Na pôdoryse jestvujúcej prístavby navrhujemenový objem pre kuchyňu, s priradenou prestrešenou terasou. Vinteriéri 1NP navrhujeme odstránenie niektorých priečok a vytvoreniepriestrannejšej vstupnej haly, ktorá zároveň prepája novo vzniknutúkuchyňu s hlavnou dennou miestnosťou v juho západnej časti domu.Na druhom nadzemnom podlaží navrhujeme nové riešeniehygienického traktu na východnej strane. V tejto časti vznikne taktiežprepojenie interiérovým schodiskom so strešnou nadstavbou.Strešná nadstavba obsahuje iba nevyhnutné priestory pre študovňu,minimálnu toaletu a prestrešenie časti strechy. Spolu na polovicipôdorysu vytvárajú ustúpené tretie nadzemné podlažie.
Prvá verzia rekonštrukcie domu rieši podstatné prevádzkovénedostatky objektu. Na pôdoryse jestvujúcej prístavby navrhujemenový objem pre kuchyňu, s priradenou prestrešenou terasou. Vinteriéri 1NP navrhujeme odstránenie niektorých priečok a vytvoreniepriestrannejšej vstupnej haly, ktorá zároveň prepája novo vzniknutúkuchyňu s hlavnou dennou miestnosťou v juho západnej časti domu.Na druhom nadzemnom podlaží navrhujeme nové riešeniehygienického traktu na východnej strane. V tejto časti vznikne taktiežprepojenie interiérovým schodiskom so strešnou nadstavbou.Strešná nadstavba obsahuje iba nevyhnutné priestory pre študovňu,minimálnu toaletu a prestrešenie časti strechy. Spolu na polovicipôdorysu vytvárajú ustúpené tretie nadzemné podlažie.
2
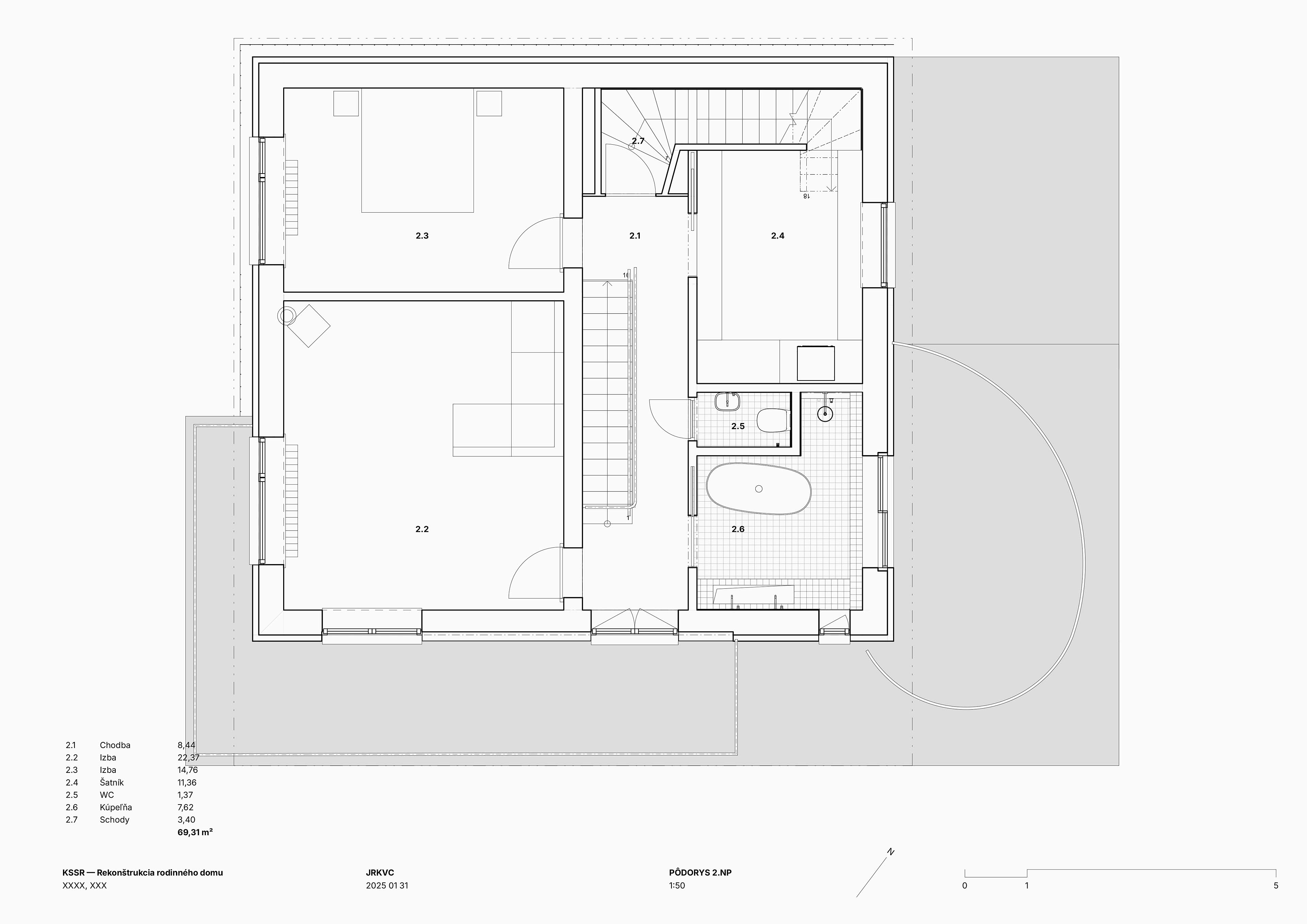
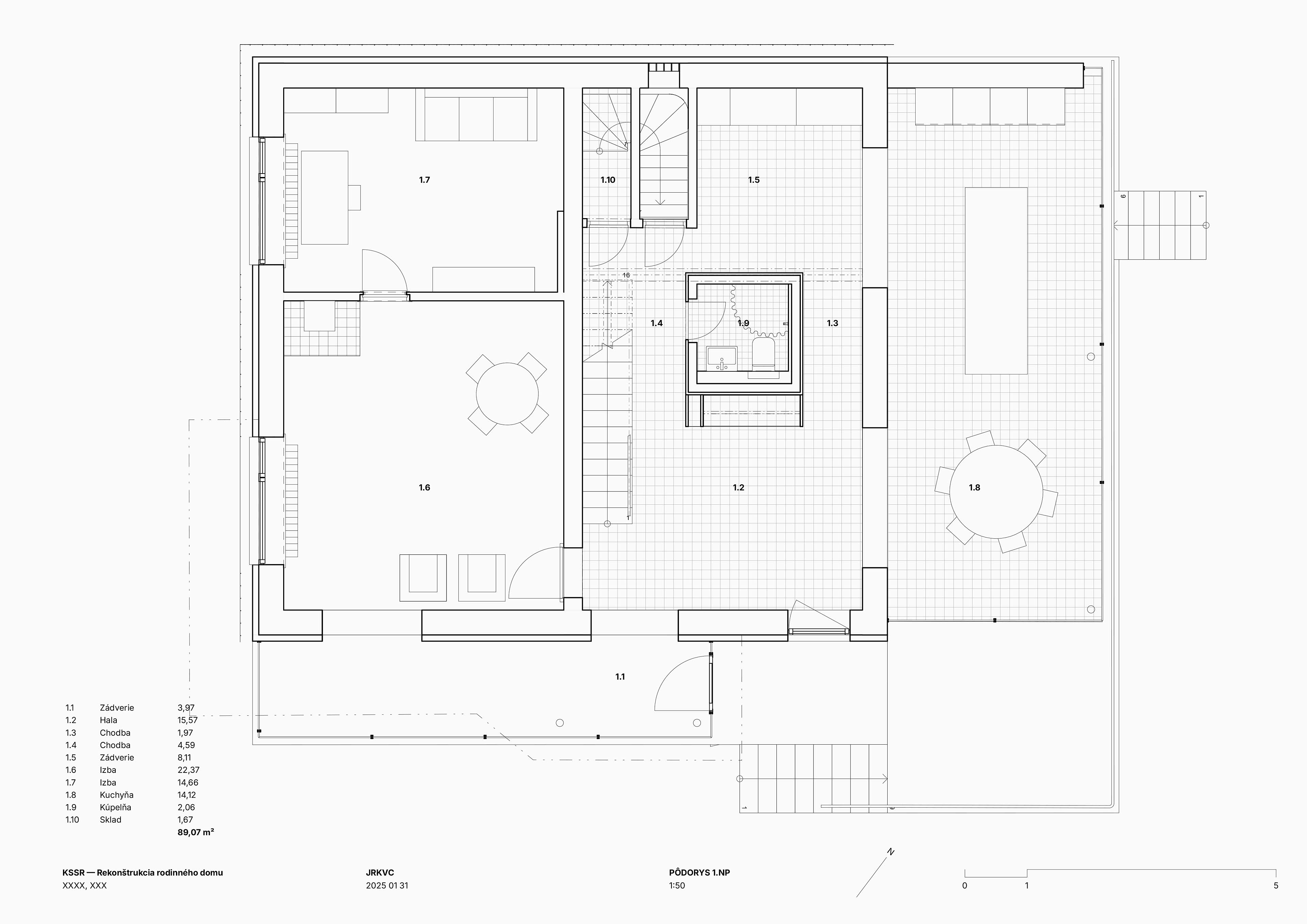
Druhá verzia návrhu rozvíja nové prvky z prevej verzie. Snažíme sazároveň eliminovať nedostatky jestvujúceho domu ako zádverie abalkóny, ktoré sú v zlom technickom stave. Tieto konštrukcie sú tedanahradené novými. Kuchyňa vypĺňa celú východnú fasádu na prvompodlaží. Strešná nadstavba má väčší objem. Navrhujeme taktiež novézádverie, ktoré je spojené so zimnou záhradou na juhovýchodnejterase domu. V tomto návrhu už tretie podlažie nespĺňa parametreustúpeného podlažia (zastavaná plocha 3NP je väčšia, ako plochapodlažia pod ním) a teda táto verzia nie je v súlade s územnýmplánom zóny.
Druhá verzia návrhu rozvíja nové prvky z prevej verzie. Snažíme sazároveň eliminovať nedostatky jestvujúceho domu ako zádverie abalkóny, ktoré sú v zlom technickom stave. Tieto konštrukcie sú tedanahradené novými. Kuchyňa vypĺňa celú východnú fasádu na prvompodlaží. Strešná nadstavba má väčší objem. Navrhujeme taktiež novézádverie, ktoré je spojené so zimnou záhradou na juhovýchodnejterase domu. V tomto návrhu už tretie podlažie nespĺňa parametreustúpeného podlažia (zastavaná plocha 3NP je väčšia, ako plochapodlažia pod ním) a teda táto verzia nie je v súlade s územnýmplánom zóny.
3
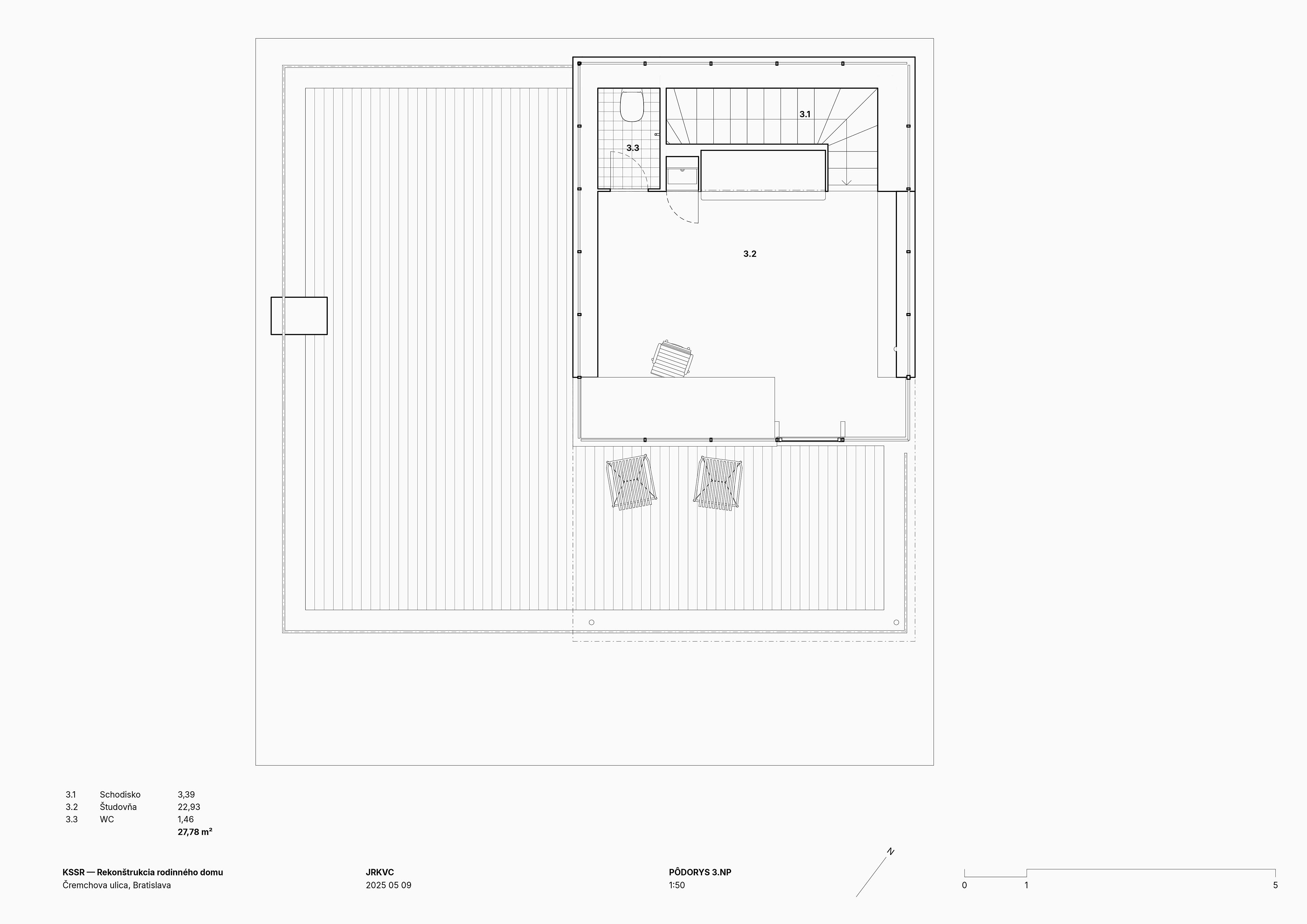
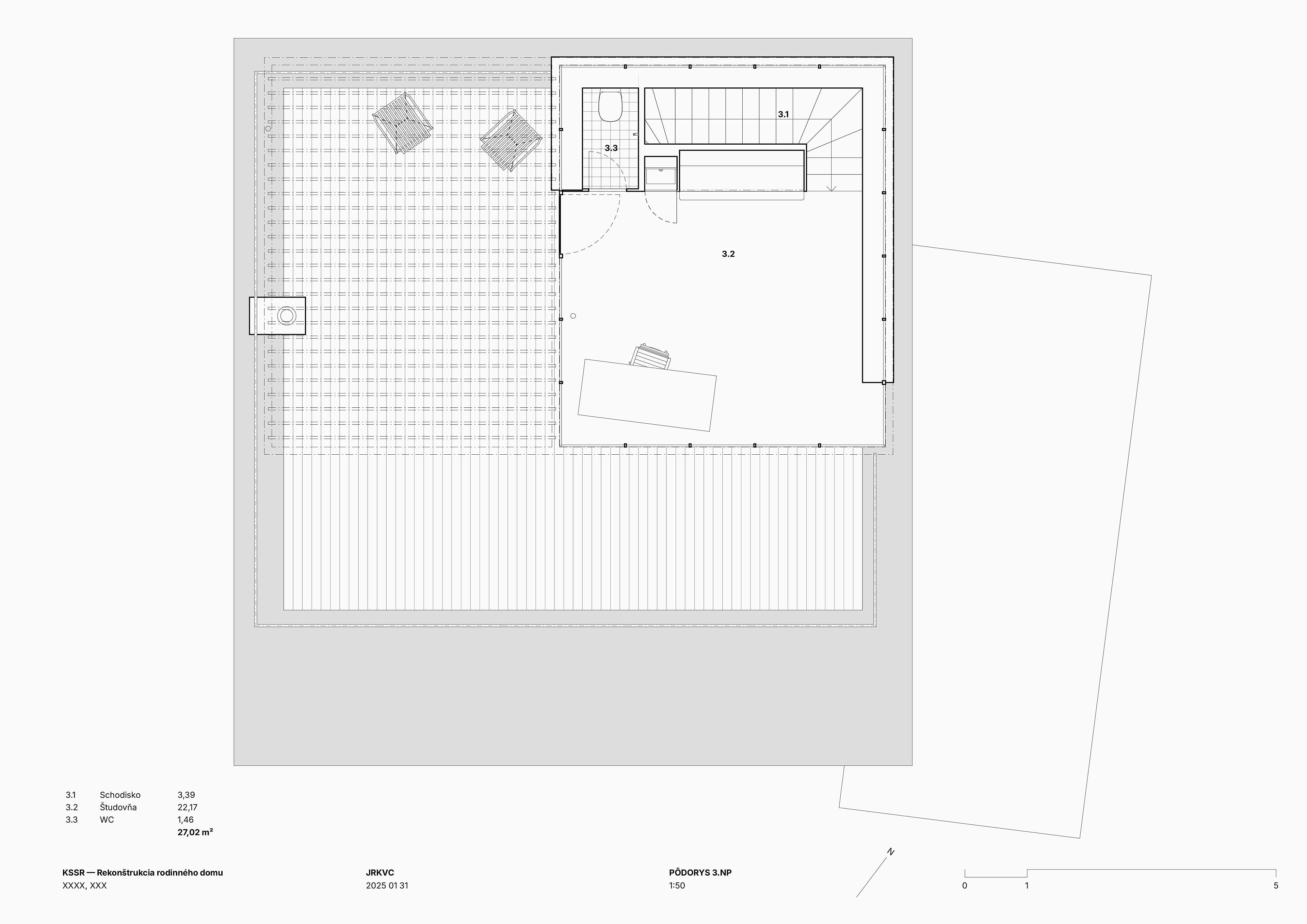
V tretej verzii sme sa venovali dizajnu strešnej nadstavby, aby spĺňalaparametre ustúpeného podlažia a aby bola intímnejšia, s väčšímpriestorom pre umenie a knihy. Zmenili sme materiálové riešenie tejtonadstavby, krytá časť strešnej terasy je umietnená na juho západnejstrane. Taktiež iné riešenie je vo vstupnej časti domu. Nástupnáterasa je širšia, s terénom je spojená v dvoch miestach - na západnejstrane v priamej línii vstupu na pozemok a na západnej strane, akoprepojenie so záhradou. Kuchyňa taktiež vypĺňa celú východnú časť,no je inak interiérovo organizovaná - na miesto centrálneho ostrovaje pracovná plocha osadená v parapetnej časti okna. Nové je taktiežriešenie vstupu na pozemok. V juhovýchodnej časti parcelynavrhujeme objekt s odpadkovými košmi, priestor pre dvaautomobily (kolmé stánie s posuvnou bránou a bránku pre pešívstup.
V tretej verzii sme sa venovali dizajnu strešnej nadstavby, aby spĺňalaparametre ustúpeného podlažia a aby bola intímnejšia, s väčšímpriestorom pre umenie a knihy. Zmenili sme materiálové riešenie tejtonadstavby, krytá časť strešnej terasy je umietnená na juho západnejstrane. Taktiež iné riešenie je vo vstupnej časti domu. Nástupnáterasa je širšia, s terénom je spojená v dvoch miestach - na západnejstrane v priamej línii vstupu na pozemok a na západnej strane, akoprepojenie so záhradou. Kuchyňa taktiež vypĺňa celú východnú časť,no je inak interiérovo organizovaná - na miesto centrálneho ostrovaje pracovná plocha osadená v parapetnej časti okna. Nové je taktiežriešenie vstupu na pozemok. V juhovýchodnej časti parcelynavrhujeme objekt s odpadkovými košmi, priestor pre dvaautomobily (kolmé stánie s posuvnou bránou a bránku pre pešívstup.