Stavebný pozemok sa nachádza v rozvojovom územi, v novej štvrti Zelené terasy. Parcela je svahovitá, s rozdielom výšok približne 4m. Nachádza sa na križovaní dvoch komunikácií, ktoré s ňou hraničia na východnej a južnej strane. Zo západnej a severnej strany pozemok susedí so stavebnými parcelami, na ktorých stoja rodinné domy. Pozemok má možnosť prístupu z obidvoch komunikácií.
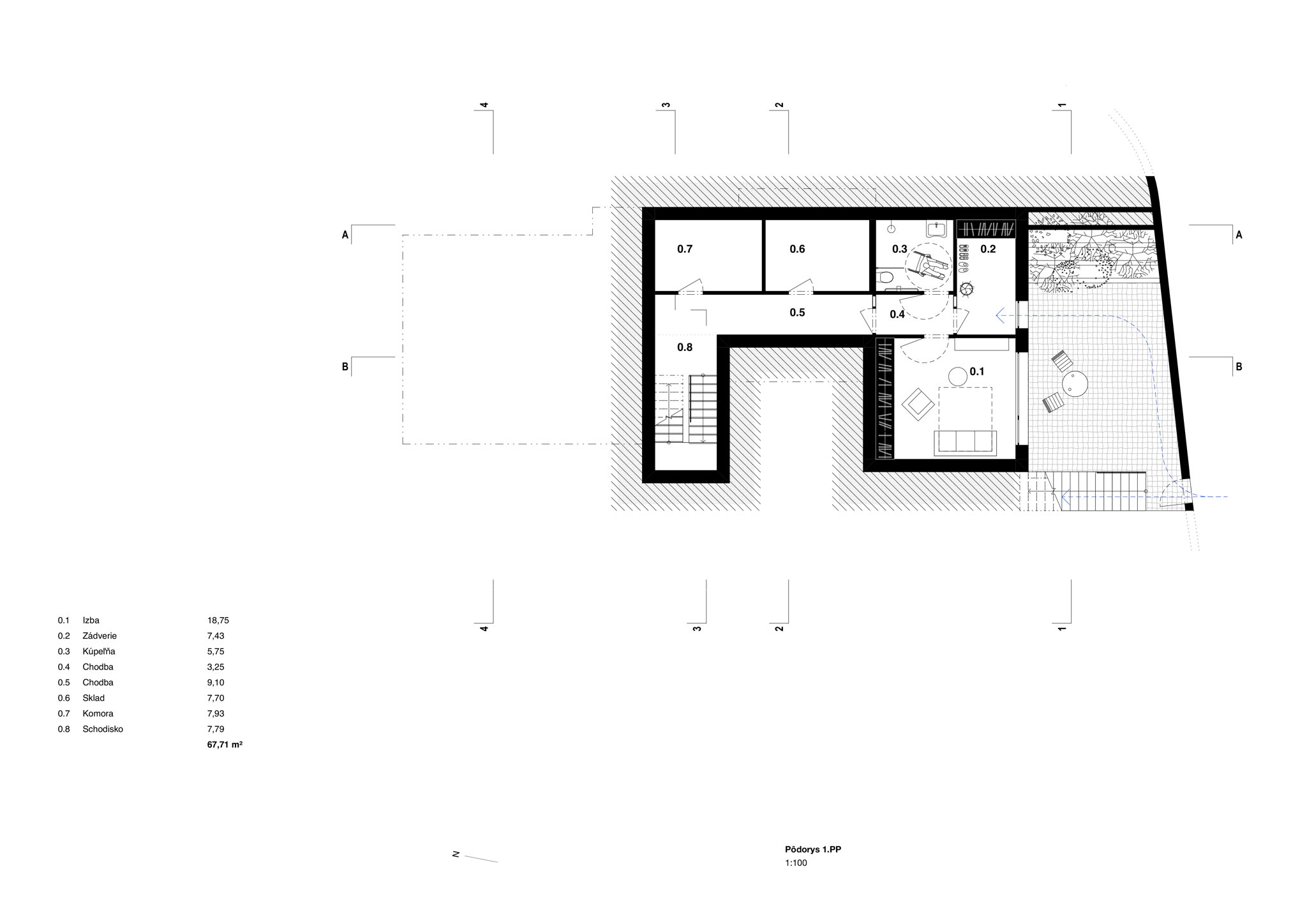
Navrhovaný rodinný dom má jedno podzemné podlažie, jedno nadzemné podlažie a podkrovie. V podzemnom podlaží sa nachádza hosťovská sekcia a technické zázemie domu. Toto podlažie má čiastočne obnaženú fasádu z južnej strany, kde sa nachádza sekundárny vstup, vedúci cez predzáhradu pri hosťovskej izbe.
Na prízemí sa nachádza denná časť domu a garáž s parkovaním dvoch osobných áut. Toto podlažie je prístupné hlavným vchodom z východnej strany pozemku. V obytnom podkroví, prístupnom pomocou dvojramenného schodiska sa nachádza nočná časť domu s tromi spálňami a hygienickým zázemím.
Navrhovaná novostavba rešpektuje charakter okolitej výstavby a odporúčania územno plánovacej dokumentácie Mestskej časti Bratislava - Devín. Lineárna stavba je orientovaná dlhšou stranou smerom na východ a západ. Podkrovie je zastrešené sedlovou strechou so sklonom 45° a výraznými presahmi chrániacimi stavbu pred poveternostnými podmienkami.
názov: HOLLY—Rodinný dom
projekt: 2020
realizácia: —
veľkosť: 305 m2
miesto: Devín, Bratislava
architekt: Peter Jurkovič
fotografie: —
Navrhovaný rodinný dom má jedno podzemné podlažie, jedno nadzemné podlažie a podkrovie. V podzemnom podlaží sa nachádza hosťovská sekcia a technické zázemie domu. Toto podlažie má čiastočne obnaženú fasádu z južnej strany, kde sa nachádza sekundárny vstup, vedúci cez predzáhradu pri hosťovskej izbe.
Na prízemí sa nachádza denná časť domu a garáž s parkovaním dvoch osobných áut. Toto podlažie je prístupné hlavným vchodom z východnej strany pozemku. V obytnom podkroví, prístupnom pomocou dvojramenného schodiska sa nachádza nočná časť domu s tromi spálňami a hygienickým zázemím.
Navrhovaná novostavba rešpektuje charakter okolitej výstavby a odporúčania územno plánovacej dokumentácie Mestskej časti Bratislava - Devín. Lineárna stavba je orientovaná dlhšou stranou smerom na východ a západ. Podkrovie je zastrešené sedlovou strechou so sklonom 45° a výraznými presahmi chrániacimi stavbu pred poveternostnými podmienkami.
názov: HOLLY—Rodinný dom
projekt: 2020
realizácia: —
veľkosť: 305 m2
miesto: Devín, Bratislava
architekt: Peter Jurkovič
fotografie: —