EDISON FILMHUB
Edison Filmhub je priestor pre fanúšikov filmu a dobrej kávy. Nachádza sa v Bratislave na Baštovej ulici. Jedná sa o kino s dvoma sálami a spoločenskými priestormi vo forme kaviarne s bistrom a malou galériou zameranou na prezentáciu skla.
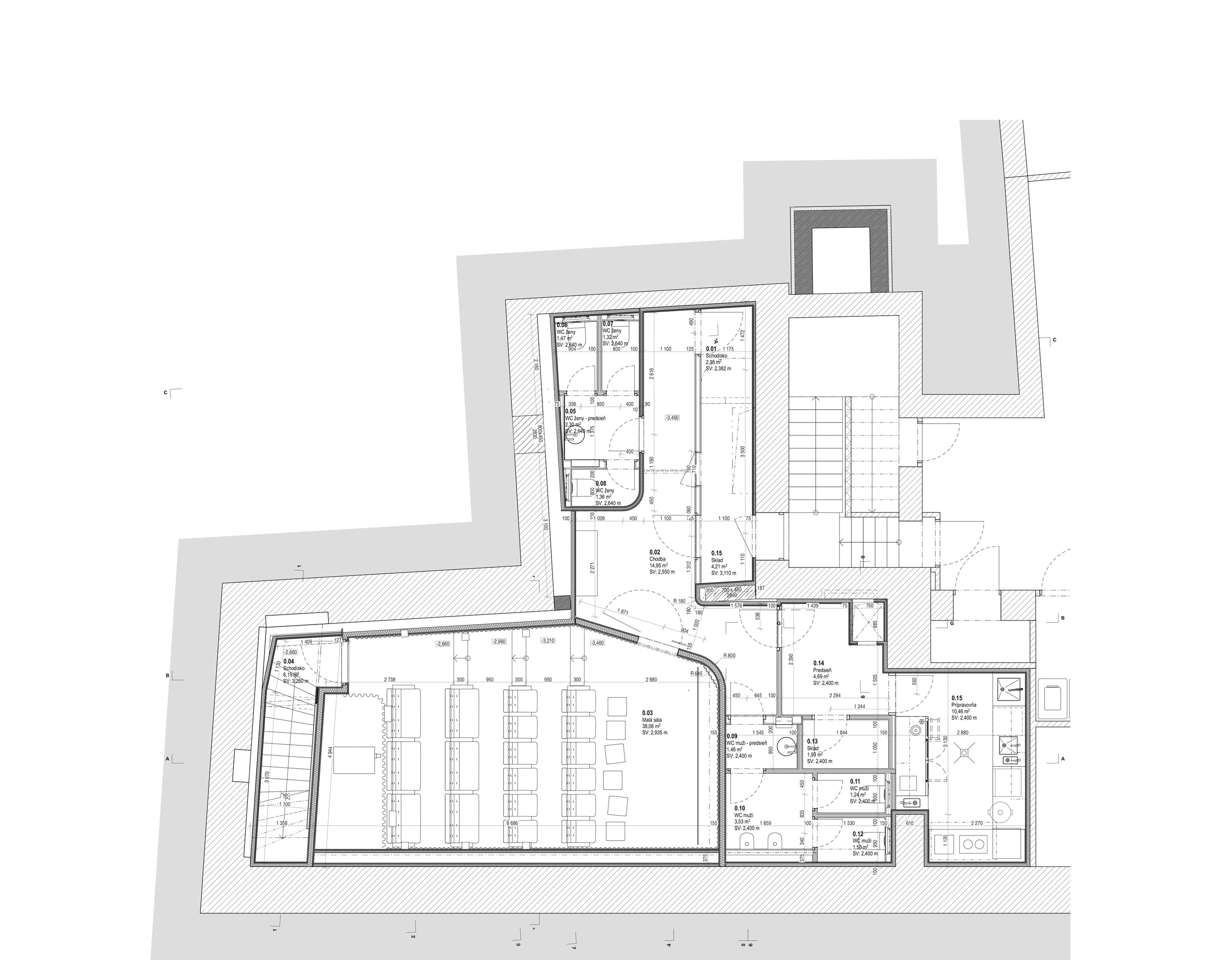
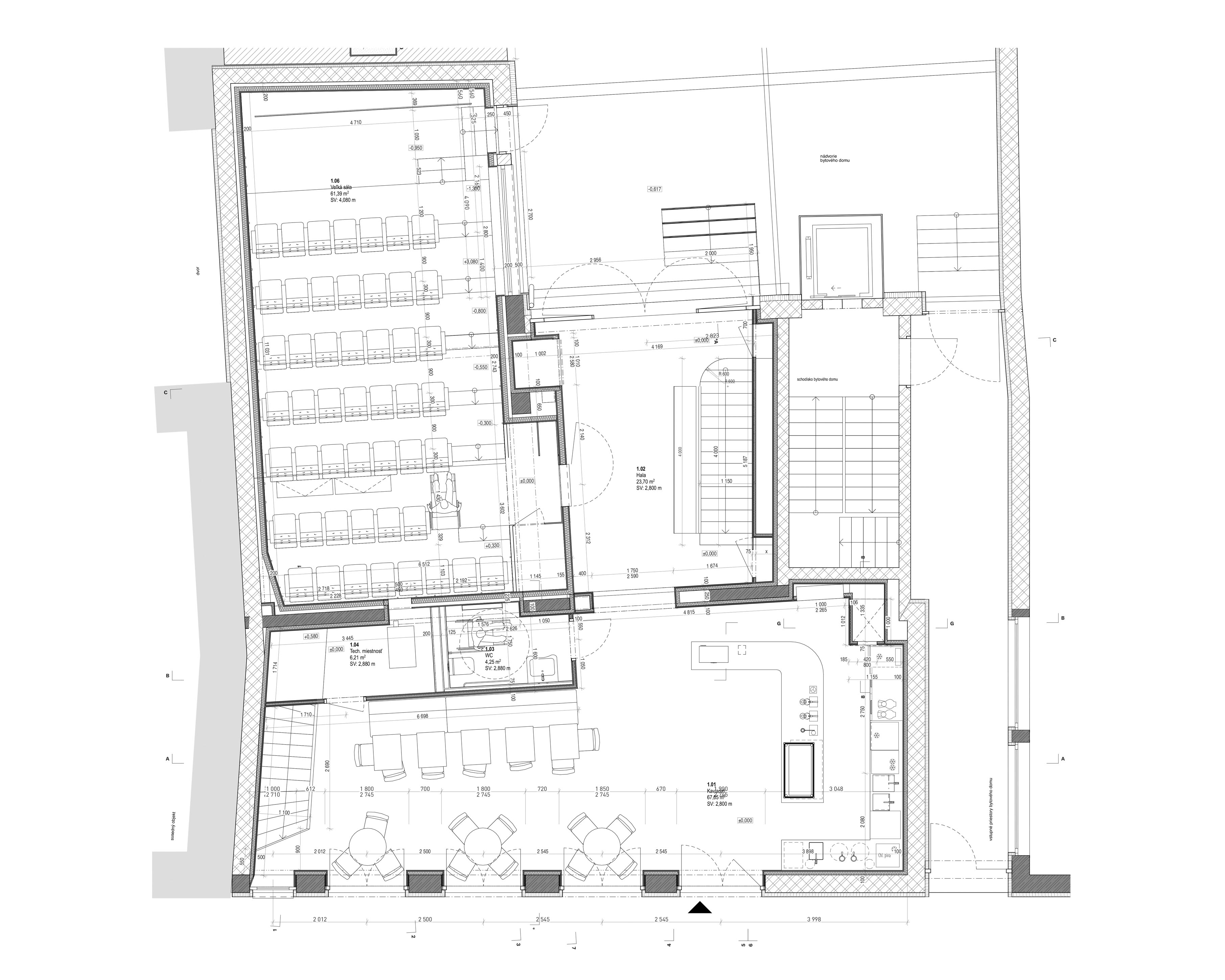
Priestory kina sa nachádzajú na prvom nadzemnom a prvom podzemnom podlaží bytového domu. Pôvodne boli určené pre vybudovanie gastroprevádzky, cieľom nášho projektu bola adaptácia nerealizovaného zámeru pre novú náplň. Vstup do priestoru je priamo z ulice Baštová.
Vstupuje sa priamo do kaviarne, ktorej dominuje barový pult v pôdorysnom tvare L. Portálom lemovaným brúseným nerezovým plechom sa návštevník dostane bližšie k dvom sálam. Hlavná (veľká) sála pre 50 divákov je prístupná z nadväzujúceho priestoru malej haly, ktorou sa ďalej pokračuje do átria. V átriu sa počíta s exteriérovým sedením pre kaviareň a je ním prístupná spomínaná galéria a administratívne priestory Edisonu. Malá sála pre 20 ľudí je dostupná schodiskom. Nachádza sa v podzemných priestoroch, spolu s toaletami pre hostí a prípravovňou studených jedál. Sály sú tmavé, zelené sedadlá s výsuvnými poznámkovými stolčekmi sú spolu s jemnými, podsvietenými drevenými hranolčekmi jediným farebným akcentom priestorov. Spoločenské a rozptylové priestory sú farebne neutrálne, podlaha s barom sú z terrazza, steny jemne okrové. Vstupné dvere do sál, masívne zábradlia dvoch schodísk a vstavaný nábytok (šatník, mobilný bar) sú dyhované tmavo moreným dubom.
Download Press Kit
Priestory kina sa nachádzajú na prvom nadzemnom a prvom podzemnom podlaží bytového domu. Pôvodne boli určené pre vybudovanie gastroprevádzky, cieľom nášho projektu bola adaptácia nerealizovaného zámeru pre novú náplň. Vstup do priestoru je priamo z ulice Baštová.
Vstupuje sa priamo do kaviarne, ktorej dominuje barový pult v pôdorysnom tvare L. Portálom lemovaným brúseným nerezovým plechom sa návštevník dostane bližšie k dvom sálam. Hlavná (veľká) sála pre 50 divákov je prístupná z nadväzujúceho priestoru malej haly, ktorou sa ďalej pokračuje do átria. V átriu sa počíta s exteriérovým sedením pre kaviareň a je ním prístupná spomínaná galéria a administratívne priestory Edisonu. Malá sála pre 20 ľudí je dostupná schodiskom. Nachádza sa v podzemných priestoroch, spolu s toaletami pre hostí a prípravovňou studených jedál. Sály sú tmavé, zelené sedadlá s výsuvnými poznámkovými stolčekmi sú spolu s jemnými, podsvietenými drevenými hranolčekmi jediným farebným akcentom priestorov. Spoločenské a rozptylové priestory sú farebne neutrálne, podlaha s barom sú z terrazza, steny jemne okrové. Vstupné dvere do sál, masívne zábradlia dvoch schodísk a vstavaný nábytok (šatník, mobilný bar) sú dyhované tmavo moreným dubom.
Download Press Kit
názov: EDISON FILMHUB
projekt: 2020
realizácia: 2022—2025
veľkosť: 250 m2
miesto: Bratislava
architekti: Peter Jurkovič, Kristína Tomanová, Peter Zeman
fotografie: Lenka Némethová
projekt: 2020
realizácia: 2022—2025
veľkosť: 250 m2
miesto: Bratislava
architekti: Peter Jurkovič, Kristína Tomanová, Peter Zeman
fotografie: Lenka Némethová

Edison Filmhub is a place for people who love films and good coffee. It sits on Baštová Street in Bratislava's old town, occupying the ground floor and basement of a residential building — a space that was originally planned as a restaurant but never built out. The project takes that unrealised shell and gives it an entirely new life as a two-screen cinema, with a café-bistro and a small gallery focused on glass art.
You enter straight into the café, which revolves around a generous L-shaped bar. From there, a portal trimmed in brushed stainless steel draws you deeper into the building, toward the two screening rooms. The main auditorium seats 50 and is reached through a small foyer that also connects to an atrium — a quieter outdoor area with café seating, and access to the gallery and Edison's back-of-house offices. The smaller 20-seat screen is tucked downstairs in the basement, alongside the guest toilets and a cold prep kitchen.
Both cinemas are deliberately dark and immersive. The deep green seats — fitted with fold-out writing tablets — and softly backlit timber slats running along the walls are the only real touches of colour. Everywhere else, the palette is calm and understated: terrazzo on the floors and bar, warm ochre on the walls. The auditorium doors, stair balustrades, and built-in joinery — a cloakroom and a mobile bar — are all finished in dark-stained oak veneer.
You enter straight into the café, which revolves around a generous L-shaped bar. From there, a portal trimmed in brushed stainless steel draws you deeper into the building, toward the two screening rooms. The main auditorium seats 50 and is reached through a small foyer that also connects to an atrium — a quieter outdoor area with café seating, and access to the gallery and Edison's back-of-house offices. The smaller 20-seat screen is tucked downstairs in the basement, alongside the guest toilets and a cold prep kitchen.
Both cinemas are deliberately dark and immersive. The deep green seats — fitted with fold-out writing tablets — and softly backlit timber slats running along the walls are the only real touches of colour. Everywhere else, the palette is calm and understated: terrazzo on the floors and bar, warm ochre on the walls. The auditorium doors, stair balustrades, and built-in joinery — a cloakroom and a mobile bar — are all finished in dark-stained oak veneer.