CHM
Dom pod lesom
Dom pod lesom
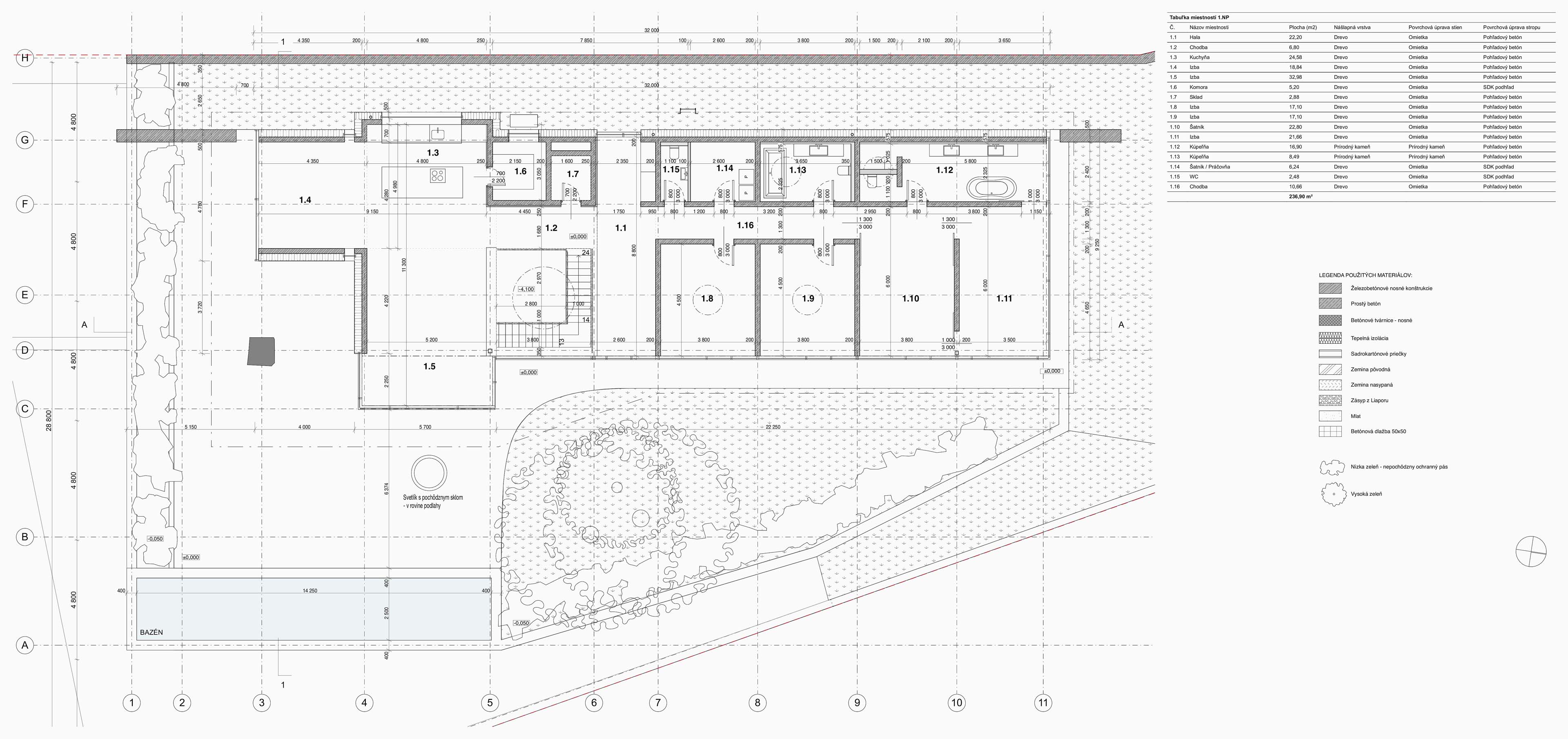
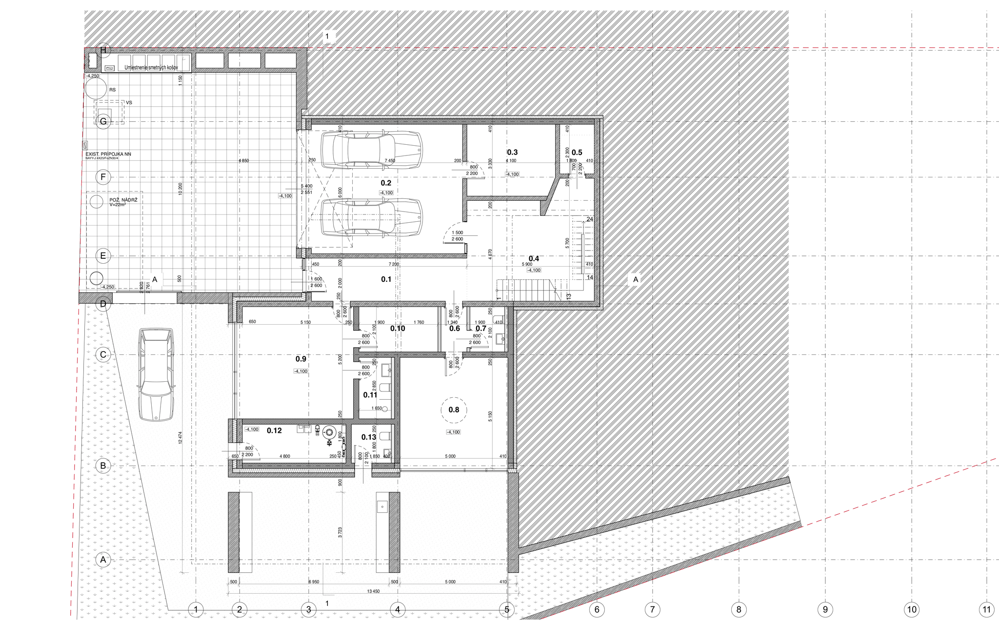
Objekt je prístupny z prvého podzemného podlažia. Na tomto podlaží sa nachádzajú dve izby s kúpelňou, schodisková hala a garáž pre dve autá, priestory skladov a miestnosť s bazénovou technológiou. Zo schodiskovej haly vedie dvojramenné schodisko na prvé nadzemné podlažie. Tu sa nachádza kuchyňa s komorou, piatimi izbami, kúpeľňami a šatníkmi.
V 1.NP je fasáda riešená ako presklená stena z hliníkovej konštrukcie na výšku celého podlažia. Prepája záhradu s vnútornou dispozíciou objektu a umožňuje výhľady do okolia. Presvetlenie vnútorných komunikačných priestorov a miestností denným svetlom je zabezpečené prostredníctvom strešných svetlíkov. Stešná doska presahuje cez obvodové steny podlažia a vytvára prekrytie vonkajšieho priestoru/ terasy po celom obvode budovy. Povrchodou úpravou s použitím škrabanej omietky sa odlišuje od nižšieho podlažia objektu, čím je podporené jeho charakteristické horizontálne členenie.
1.PP je z časti zapustené v teréne, okenné otvory tu vychádzajú z navrhnutej dispozície a budúceho riešenia interiéru objektu. Dané podlažie je bez dodatočnej vonkajšej povrchovej úpravy. Nosná oceľobetónová sendvičová konštrukcia stien a stropných dosiek a ich technologické prevedenie debnením ostáva na fasáde priznané.
Súčasťou východnej časti terasy na 1.NP je exteriérový bazén s napnutou hladinou, šírky 2,5m a dĺžky 14,25m s materiálovým prevedením z nehrdzavejúcej ocele. Technológia bazénu bude umiestnená v 1.PP v blízkosti bazénu.
Viac z procesu výstaby na blogu
Download Press Kit
V 1.NP je fasáda riešená ako presklená stena z hliníkovej konštrukcie na výšku celého podlažia. Prepája záhradu s vnútornou dispozíciou objektu a umožňuje výhľady do okolia. Presvetlenie vnútorných komunikačných priestorov a miestností denným svetlom je zabezpečené prostredníctvom strešných svetlíkov. Stešná doska presahuje cez obvodové steny podlažia a vytvára prekrytie vonkajšieho priestoru/ terasy po celom obvode budovy. Povrchodou úpravou s použitím škrabanej omietky sa odlišuje od nižšieho podlažia objektu, čím je podporené jeho charakteristické horizontálne členenie.
1.PP je z časti zapustené v teréne, okenné otvory tu vychádzajú z navrhnutej dispozície a budúceho riešenia interiéru objektu. Dané podlažie je bez dodatočnej vonkajšej povrchovej úpravy. Nosná oceľobetónová sendvičová konštrukcia stien a stropných dosiek a ich technologické prevedenie debnením ostáva na fasáde priznané.
Súčasťou východnej časti terasy na 1.NP je exteriérový bazén s napnutou hladinou, šírky 2,5m a dĺžky 14,25m s materiálovým prevedením z nehrdzavejúcej ocele. Technológia bazénu bude umiestnená v 1.PP v blízkosti bazénu.
Viac z procesu výstaby na blogu
Download Press Kit
názov: CHM—Dom pod lesom
projekt: 2020
realizácia: 2021—2024
veľkosť: 420 m2
miesto: Bratislava
architekt: Peter Jurkovič
krajinný architekt: Antonín Němec
interiér: Kristína Tomanová
fotografie: Peter Jurkovič
projekt: 2020
realizácia: 2021—2024
veľkosť: 420 m2
miesto: Bratislava
architekt: Peter Jurkovič
krajinný architekt: Antonín Němec
interiér: Kristína Tomanová
fotografie: Peter Jurkovič