


















BJKL
Prístavba základnej školy
Prístavba základnej školy
Dvojpodlažný objekt s úžitkovou plochou 520 m2 je jedinečný nielen z hľadiska použitého materiálu a účelu, ale najmä z pohľadu rýchlosti výstavby. Od vykopania základov po kolaudáciu stavby uplynulo iba 70 dní...
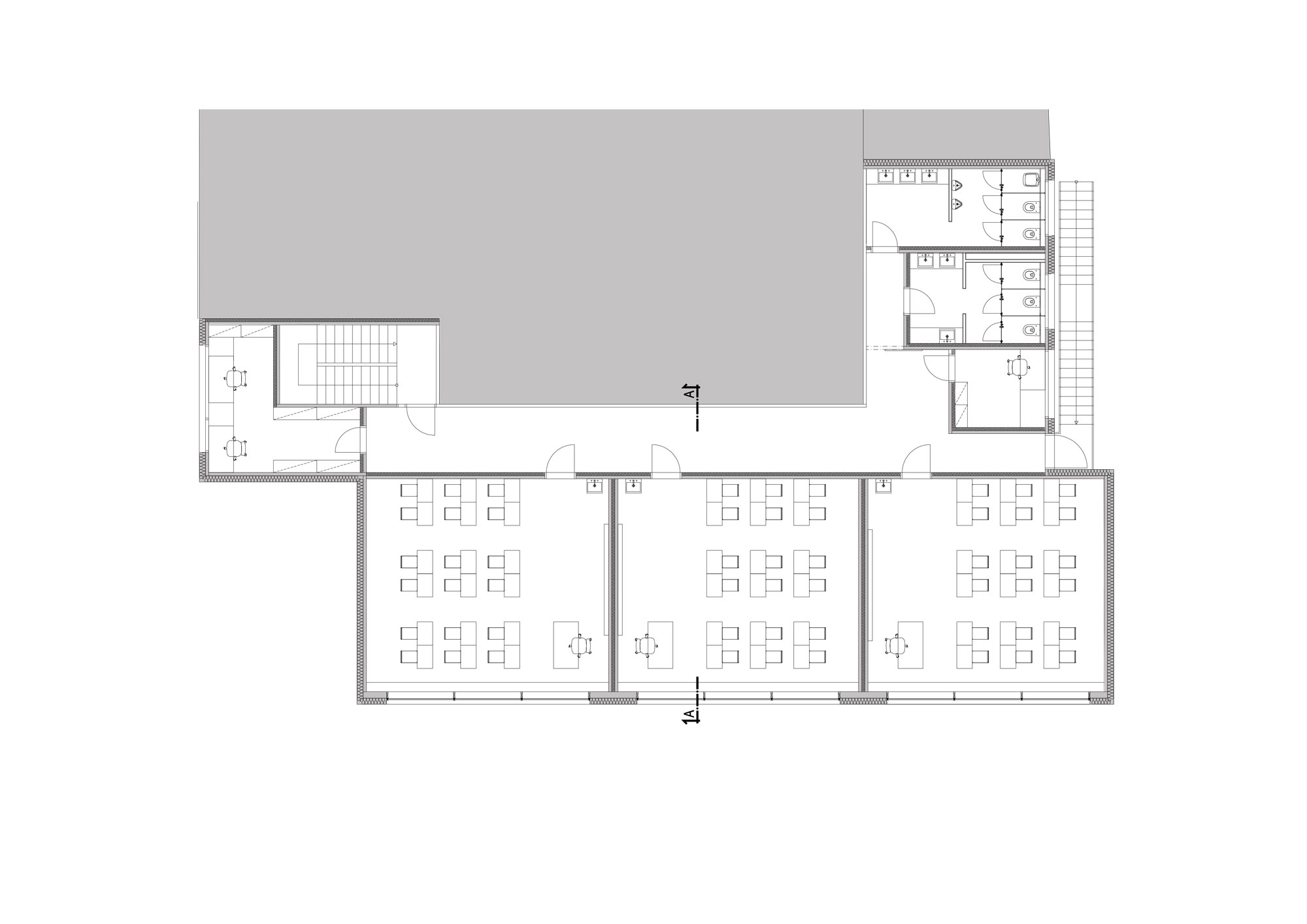
Projekt architektúry bol vypracovaný ateliérom Raum3 s.r.o. (Ing. arch. Marcel Dzurilla, Ing. arch. Martina Müllerová) v spolupráci s ateliérom JRKVC (Ing.arch.Peter Jurkovič). Areál školy tvorí dnes hlavný objekt z Bajkalskej ulice, jedáleň a dom školníka a objekt telocvične. Objekt je umiestnený na spevnenej ploche školského dvora. Prístavba má jednoduchý tvar s plochou strechou. Do objektu sa vstupuje priamo zo školského dvora alebo z chodby vedúcej z telocvične. Pri tomto uzle je navrhnuté vertikálne komunikačné jadro – schodisko. Na prvom podlaží sú navrhnuté tri triedy, technické a hygienické zázemie pre toto podlažie. Na druhom podlaží sa nachádzajú ďalšie tri triedy, kabinet a hygienické zázemie pre toto podlažie. Triedy majú rovnaké rozmery 7x7,8 m s výnimkou jednej na prízemí, ktorá je o 2 m menšia z dôvodu požiarnej únikovej cesty. Všetky triedy sú orientované na juhozápad, čím sú zaistené tepelné zisky zo slnka v zimnom období. Prehrievaniu v jarnom a letnom období bránia vonkajšie žalúzie na fasáde.
Viac z procesu výstaby na blogu
Download press kit
Projekt architektúry bol vypracovaný ateliérom Raum3 s.r.o. (Ing. arch. Marcel Dzurilla, Ing. arch. Martina Müllerová) v spolupráci s ateliérom JRKVC (Ing.arch.Peter Jurkovič). Areál školy tvorí dnes hlavný objekt z Bajkalskej ulice, jedáleň a dom školníka a objekt telocvične. Objekt je umiestnený na spevnenej ploche školského dvora. Prístavba má jednoduchý tvar s plochou strechou. Do objektu sa vstupuje priamo zo školského dvora alebo z chodby vedúcej z telocvične. Pri tomto uzle je navrhnuté vertikálne komunikačné jadro – schodisko. Na prvom podlaží sú navrhnuté tri triedy, technické a hygienické zázemie pre toto podlažie. Na druhom podlaží sa nachádzajú ďalšie tri triedy, kabinet a hygienické zázemie pre toto podlažie. Triedy majú rovnaké rozmery 7x7,8 m s výnimkou jednej na prízemí, ktorá je o 2 m menšia z dôvodu požiarnej únikovej cesty. Všetky triedy sú orientované na juhozápad, čím sú zaistené tepelné zisky zo slnka v zimnom období. Prehrievaniu v jarnom a letnom období bránia vonkajšie žalúzie na fasáde.
Viac z procesu výstaby na blogu
Download press kit
názov: BJKL—Prístavba základnej školy
realizácia: 2015
veľkosť: 520 m2
miesto: Bratislava
architekt: M. Dzurilla, M. Müllerová (Raum3 s.r.o.), P. Jurkovič
fotografie: P. Jurkovič
realizácia: 2015
veľkosť: 520 m2
miesto: Bratislava
architekt: M. Dzurilla, M. Müllerová (Raum3 s.r.o.), P. Jurkovič
fotografie: P. Jurkovič