Podnikateľským zámerom investora je vybudovanie polyfunkčného objektu s prevahou bývania.
Riešená lokalita sa nachádza pri dopravnej tepne mesta Prešov – pri Prostějovskej ulici. Pozemok susedí so z juhovýchodnej strany spomínanou ulicou, z juhozápadu nadväzuje na jestvujúcu výstavbu 7 podlažných bytových domov. Z ostatných strán je lemovaný nezastavaným územím a prírodným porastom. Je exponovaný s výbornou vizibilitou.
Pozemok je mierne svahovitý, stúpa smerom od Prostějovskej ulice k severozápadnému svahu.
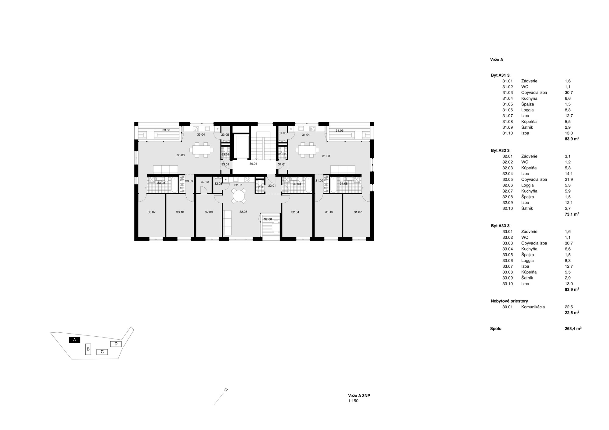
Navrhovaný objekt je hmotovo organizovaný do jednopodlažnej podstavy s občianskou vybavenosťou. Z nej v pravideľných rozostupoch a rôznych natočeniach vyrastajú štyri, takmer identické vežové objekty so siedmimi nadzemnými podlažiami. V nich budú na druhom nadzemnom podlaží umiestnené priestory administratívneho charakteru. Ostatné podlažia budú rezidenčné. V objekte budú 2, 3, 4 a 5 izbové byty. Všetky byty majú loggiu.
Objekt je pôdorysne organizovaný tak, aby v juho-východnom cípe pozemku vznikol priestor—námestie lokálneho významu s pridruženou občianskou vybavenosťou a službami a takisto parkoviskom na úrovni terénu.
Na severo-západnej strane objektu je podzemné parkovisko pre celý objekt. Je umiestnené na úrovni 1NP, využíva terénnu charakteristiku parcely. Bude prestrešené strechou s vegetačnou vrstvou a parkovou úpravou a plynule nadväzovať na jestvujúci terén okolitého územia.
názov: BIKOŠ—Polyfunkčný bytový dom
realizácia: —
veľkosť: 11 161 m2
miesto: Prešov
architekti: Marcel Dzurilla, Peter Jurkovič, Kristína Machajová, Kristína Tomanová
fotografie: Pavol Šilla
Riešená lokalita sa nachádza pri dopravnej tepne mesta Prešov – pri Prostějovskej ulici. Pozemok susedí so z juhovýchodnej strany spomínanou ulicou, z juhozápadu nadväzuje na jestvujúcu výstavbu 7 podlažných bytových domov. Z ostatných strán je lemovaný nezastavaným územím a prírodným porastom. Je exponovaný s výbornou vizibilitou.
Pozemok je mierne svahovitý, stúpa smerom od Prostějovskej ulice k severozápadnému svahu.
Navrhovaný objekt je hmotovo organizovaný do jednopodlažnej podstavy s občianskou vybavenosťou. Z nej v pravideľných rozostupoch a rôznych natočeniach vyrastajú štyri, takmer identické vežové objekty so siedmimi nadzemnými podlažiami. V nich budú na druhom nadzemnom podlaží umiestnené priestory administratívneho charakteru. Ostatné podlažia budú rezidenčné. V objekte budú 2, 3, 4 a 5 izbové byty. Všetky byty majú loggiu.
Objekt je pôdorysne organizovaný tak, aby v juho-východnom cípe pozemku vznikol priestor—námestie lokálneho významu s pridruženou občianskou vybavenosťou a službami a takisto parkoviskom na úrovni terénu.
Na severo-západnej strane objektu je podzemné parkovisko pre celý objekt. Je umiestnené na úrovni 1NP, využíva terénnu charakteristiku parcely. Bude prestrešené strechou s vegetačnou vrstvou a parkovou úpravou a plynule nadväzovať na jestvujúci terén okolitého územia.
názov: BIKOŠ—Polyfunkčný bytový dom
realizácia: —
veľkosť: 11 161 m2
miesto: Prešov
architekti: Marcel Dzurilla, Peter Jurkovič, Kristína Machajová, Kristína Tomanová
fotografie: Pavol Šilla